Dom pre architektovu mamu: Trochu iná stodola, na aké sme zvyknutí
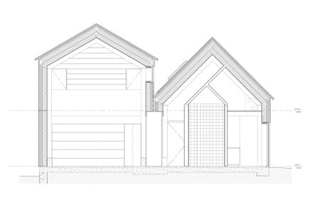
Jednoduché línie, čistota, béžová, biela, sivá. Dom, ktorý na prvý pohľad vyzerá ako stodola, ale od väčšinu podobných projektov sa odlišuje povrchovým materiálom – fasádu totiž nepokrýva drevo, ale hliník. To sú základné charakteristické prvky projektu, ktorý švédsky architekt Björn Förstberg pripravil pre svoju mamu.
Prvý dom z projektu
I keď Dom pre matku z dielne architektonického štúdia Förstberg Ling pôsobí ako samostatný celok, v podstate je prvým dokončeným domom výstavby vo švédskom univerzitnom a priemyselnom meste Linköping. Realizácia ďalšej výstavby je z väčšej časti naplánovaná na rok 2017. Architekti tvrdia, že východiskovým bodom celého projektu bolo riešenie bohatých variácií domov stojacich na úzkych parcelách. Nechajme sa prekvapiť, ako budú vyzerať ostatné – teraz si však zoberieme pod drobnohľad prvý dom.
Jednoduchosť áno, prvoplánovosť nie
Formálna jednoduchosť tohto domu, či už zvonku, alebo v interiéri, má veľkú silu a význam, rozhodne nie je prvoplánová. Fasáda zo surového vlnitého hliníka i vďaka reflexnému povrchu vytvára zaujímavú hru svetla a tieňa, ktorá sa počas dňa mení. Bohaté významy, ktoré nadobúda, kontrastujú s jednoduchým vyjadrením.
Surový hliník na fasáde a streche je bezúdržbový, čo je tiež nesporne veľkou výhodou. Kovovú bezfarebnú fasádu prerušujú veľké okná umožňujúce trvalé prúdenie svetla do interiéru. Ten je charakteristický priestrannosťou a prehľadnosťou.
Hlavné črty interiéru? Drevo, preglejka a betón
I keď dom môže zvonku vďaka hliníku pôsobiť chladne, vnútorný priestor zútulňujú drevené trámy a krovy, ktoré rovnako ako aj preglejkový obklad stien vytvárajú pocit tepla a harmónie.
Ako trvanlivý a estetický povrch podlahy na každodenné použitie architekti zvolili čoraz obľúbenejší betón. Betónový sokel po obvode budovy umožňuje praktické využitie ako lavica či odkladací priestor, ktorého nikdy nie je dosť.
S obývacou izbou je prepojený malý skleník z polykarbonátových dosiek. V spálni na zvýšenom podlaží nájdeme ľahkú drevenú podlahu.
Dve časti jedného celku
Dom je koncepčne i funkčne rozdelený do dvoch častí, ktoré sú navzájom mierne posunuté a a opticky tak rozširujú neveľký pozemok. Vybavením i vzhľadom vychádza v ústrety predstavám matky architekta o príjemnom bývaní – je knihovníčka, a preto nechýba ani rozmerná knižnica s priestorom na štúdium.
Tá je spolu so spálňou, šatníkom a kúpeľňou situovaná do menšej časti domu. V hlavnej časti tejto stavby inšpirovanej stodolou sa nachádza kuchyňa s jedálňou a obývacím priestorom. Nechýba tu ani kúpeľňa.
Škandinávska stodola sa nezaobíde bez preglejky
Odkazy na stodolu sú v celom projekte zrejmé, ale posunuté do nových foriem a súvislostí. Nájdeme tu napríklad obnažený drevený krov a steny obalené do preglejky, ktoré dopĺňajú celkovú škandinávsku estetiku domu.
Všeobecne, vo vzdušnom interiéri je veľmi zaujímavo použitý kontrast medzi betónom a preglejkou. Preglejkové steny nájdeme aj v kuchyni, podobné prvky nechýbajú ani v kúpeľni.
Dom pre matku v kocke
Architekti: Förstberg Ling
Lokalizácia: Linköping, Švédsko
Plocha: 135,0 m2
Realizácia: 2016
Sabína Zavarská
Zdroj: Förstberg Ling
Foto: Markus Linderoth





















