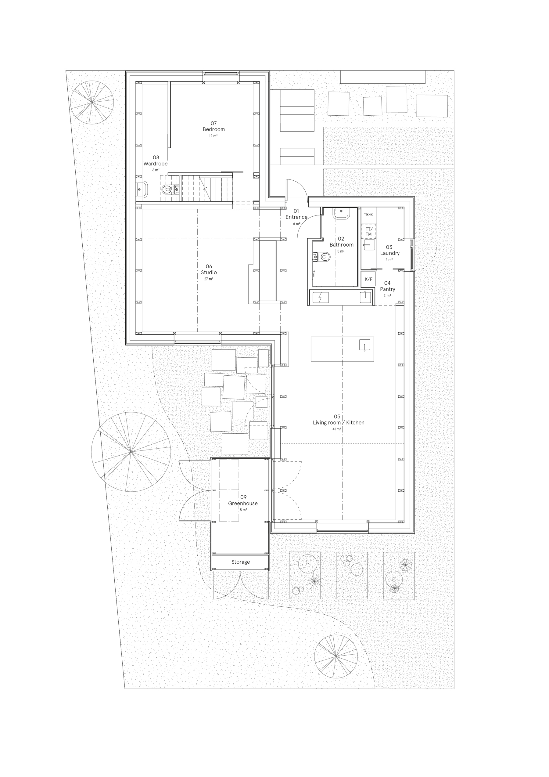
Späť na článok Dom pre architektovu mamu: Trochu iná stodola, na aké sme zvyknutí
3 / 23
F003 PLAN
F003 PLAN
ASB Logo ASB Logo