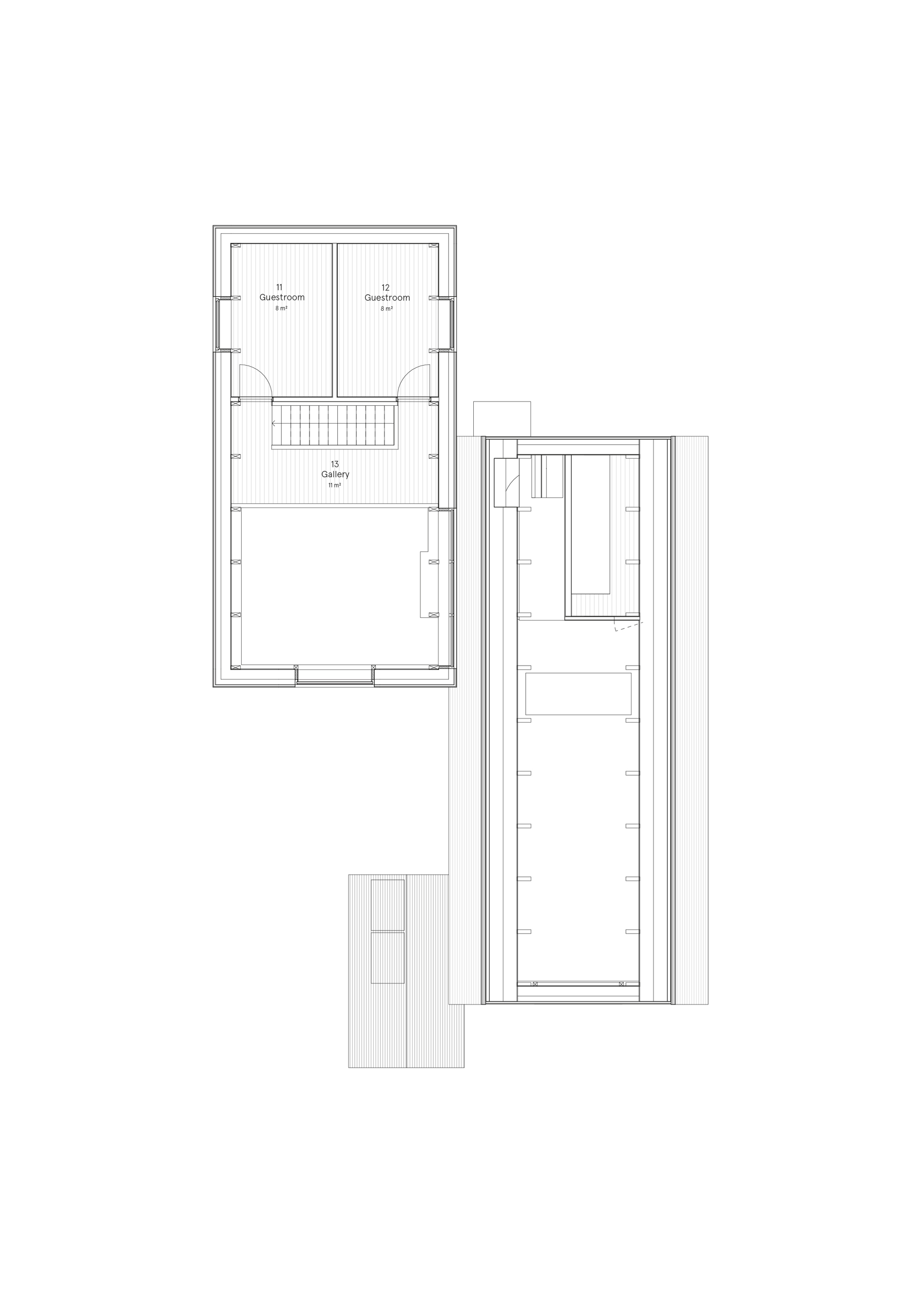
Späť na článok Dom pre architektovu mamu: Trochu iná stodola, na aké sme zvyknutí
4 / 23
F003 PLAN 2
F003 PLAN 2
ASB Logo ASB Logo