Späť na článok Dom pre architektovu mamu: Trochu iná stodola, na aké sme zvyknutí
5 / 23
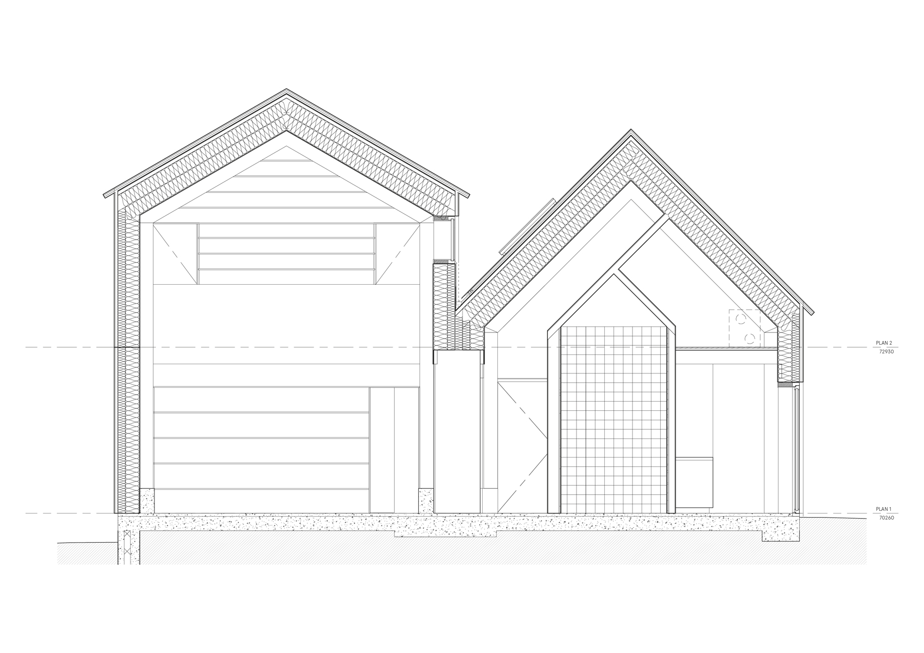
F003 SECTION
F003 SECTION
ASB Logo ASB Logo