Vidiecky dom, ktorý ladí so svojím okolím
Dom na okraji malej dediny Bohumileč je schovaný za hradbou stromov a úzko spätý s vodnou plochou, ku ktorej sa skláňajú staré vŕby. Aj keď bol postavený v roku 2010, je s okolitým vidieckym prostredím prepojený jednoduchosťou a triezvosťou. Tieto atribúty ním prechádzajú od základnej hmoty cez materiály až po detaily.
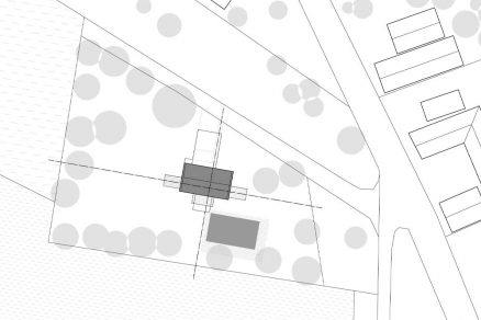
Dom pre rodinu s dvomi deťmi sedí na pozemku na konci obce, ktorý z jednej strany susedí s okolitými domami a z druhej sa otvára do okolitej krajiny. Mohutná zeleň vytvára domu jeho vlastný svet, do ktorého je väčšinu roka úplne ponorený.
Lapidárnosť, začínajúca sa hmotovým riešením a končiaca detailmi, v sebe nesie princípy súčasnej i vidieckej architektúry a začleňuje dom do vidieckeho prostredia.
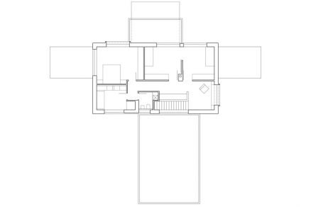
Pôdorysný koncept domu je postavený na vzájomne kolmých osiach, definovaných orientáciou na svetové strany, poskytujúcich výhľady na krajinu, priehľad smerom k posledným domom v dedine a vstup. Osi sú akcentované terasami, markízou tieniacou južné zasklenie a prístreškom, ktorý kryje odstavnú plochu na severnej, prístupovej strane. Pozdĺžna os dom rozdeľuje na južnú obytnú a severnú prevádzkovú časť.
Hlavný obytný priestor je prostredníctvom veľkoformátových okien výrazne prepojený so svojím okolím. Prelínanie vnútorného a vonkajšieho prostredia zvýrazňujú drevené terasy vystupujúce z domu v smere základných priestorových osí. Východné a západné okná sú zapustené do hmoty domu a vytvárajú zákutia chránené pred slnkom i dažďom. Južná terasa predsadená pred domom vychádza v ústrety slnku a spája dom s hladinou kúpacieho jazierka.
Na poschodí výhľady do okolia rámujú tzv. šambrány vystupujúce z hmoty domu. Materiály sa tu použili vo svojej prirodzenej podobe, prípadne spôsobom neoslabujúcim ich charakter. Drevený plášť domu je z povrchovo neošetreného smrekovca, ktorý každý deň viac mení svoju červenkastú farebnosť na tlmenú sivú patinu a zbližuje dom s jeho okolím. Okrem dreveného obkladu sa použili aj kusy fasádnej preglejky upravenej čiernou tenkovrstvovou lazúrou a pozinkované oceľové prvky. Pozinkovaný rošt bol navrhnutý ako tieniaca výplň markízy, lavička spájajúca dom s hospodárskou „búdou“ schovanou pod severným prístreškom a ako podpora pre popínavé rastliny, ktoré raz prerastú perforovanú stenu prístrešku.
Farebnosť interiéru ustupuje farebnosti okolitej zelene, odtiene okolia vstupujú do domu a v jednotlivých ročných obdobiach ho premieňajú. Vďaka veľkorysému zaskleniu žiadna z týchto zmien obyvateľom domu neunikne. Jednofarebný interiér je doplnený stolárskymi výrobkami z preglejky a svetlou podlahou.
Kúpacie jazierko poskytuje domov vodnej faune a flóre na rovnakej ploche, akú si dom zabral pre seba.
Dom v Bohumilči je nenápadný, prirodzene zrastený so svojím okolím, ale súčasne sebavedomý a výrazný.
Lokalita: Bohumileč, Pardubický kraj
Klient: Marcela a David Tučekovci
Projekt: Mimosa Architekti
Spolupráca: Statikon Solutions
Termín projektu: 2008
Realizácia: 2008 – 2010
Marie Urbancová
Foto: Lucie Mlynářová


















