Späť na článok
Vidiecky dom, ktorý ladí so svojím okolím
4 / 18
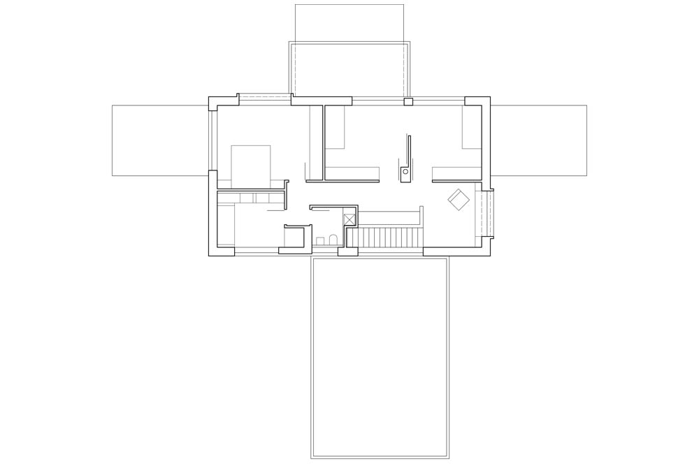
Pudorys 2NP