Späť na článok
Vidiecky dom, ktorý ladí so svojím okolím
3 / 18
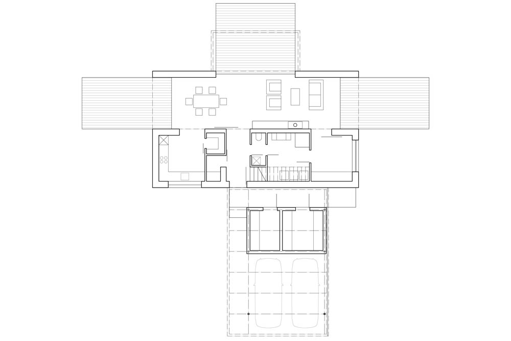
Pudorys 1NP