Nový vstup Van Goghovho múzea
Museumplein je veľmi pravdepodobne v itinerári každého návštevníka Amsterdamu. Na rozsiahlej ploche stoja tesne vedľa seba Stedelijk Museum a Van Gogh Museum. Tejto dvojici kontruje na východnej strane populárne Rijksmuseum s náprotivkom v podobe koncertnej sály na západe. Námestie prešlo v roku 1999 významnou rekonštrukciou. K múzeám postupne pribúdali prístavby a nové vstupy, až sa dostalo na rad aj Van Gogh Museum.
Hans van Heeswijk Architects Múzeum navštívi 1,5 milióna návštevníkov ročne a ich počet stále rastie. Nový vstup už bol nevyhnutnosťou. Moderné architektonické zásahy otvorili tieto inštitúcie ešte viac smerom k verejnosti a pomohli zútulniť obrovský verejný priestor.
Subtílne sklenené schodisko je samo osebe exponátom. Foto: Luuk Kramer
V interiéri sa dá ľahko zorientovať. Foto: Luuk Kramer
Rekordné nosníky
Na prvom návrhu budovy Van Goghovho múzea pracoval v sedemdesiatych rokoch architekt Gerrit Rietveld. Prístavbu nového výstavného krídla autorsky riešil Kisho Kurokawa, postavená bola v roku 1999. Architekt Kurokawa urobil aj prvú skicu, ktorá v hrubých črtách zobrazovala eliptický tvar nového vstupu. V jeho myšlienke pokračoval tím architektov zo štúdia Hans van Heeswijk Architects z Amsterdamu. Počas dvoch rokov pracovali nielen na tvarovom a estetickom riešení, ale najmä na jeho konštrukcii, ktorá po dokončení v roku 2015 drží rekord v dĺžke skleneného konštrukčného prvku. Sklenené nosníky použité na novom vstupe majú dĺžku až 12 m a výšku 70 cm. Oceľovo-sklenená konštrukcia predstavuje v technických inováciách transparentných štruktúr významný krok vpred.
Sklenené nosníky preklenuli rekordné rozpätie 12 m. Foto: Ronald Tilleman
Nový vstup má viacero úrovní. Foto: Ronald Tilleman
Ohýbané za studena
Oblúková fasáda sa skladá z tabúľ s dvojitým sklom, ktoré bolo ohýbané za studena. Obdĺžnikové panely boli tvarované priamo na mieste pred inštaláciou. Celková plocha sklenenej fasády je 650 m2. Plocha skleného zastrešenia je podobná, má 600 m2, pričom sklenená škrupina je ohnutá pod uhlom 16,5°. Stabilite celej sklenenej konštrukcie pomáha oceľový rám, ku ktorému je konštrukcia pripevnená, a oba stavebné prvky sa staticky dopĺňajú.
Sklenená a oceľová konštrukcia tvoria jeden celok. Foto: Luuk Kramer
Sklo je použité na rôznych typoch konštrukcií. Foto: Ronald Tilleman
Schodisko ako artefakt
Sklo je použité aj na hlavnom schodisku, ktoré podopiera, ako inak, oblúk z trojitého lepeného skla. Použitie ocele sa na schodisku zredukovalo na minimum, cieľom autorov bolo, aby bol tento interiérový prvok čo najmenej viditeľný, takmer až efemérny. Architekti sa pohrali aj so svetlom. LED diódy sú integrované do sklenených nášľapných dosiek, takže dokážu v jedinečnom priestore rozohrať fantastickú hru svetiel, ktorá je, samozrejme, viditeľná z celého námestia. „Chceli sme vytvoriť priestrannú a svetlú vstupnú halu s množstvom skla,“ hovorí architekt Hans van Heeswijk. „Jednoducho sme chceli zachytiť nádhernú slnečnú atmosféru, ktorá je priam hmatateľná na mnohých van Goghových obrazoch. Podarilo sa nám vytvoriť unikátnu opornú konštrukciu pre sklenenú strechu. Takmer si ju nevšimnete.
Podzemné podlažie prepája nový vstup so staršou časťou múzea. Foto: Ronald Tilleman
Impozantný objekt ako pozvánka do múzea impresionistu. Foto: Luuk Kramer
Keď vstúpite dnu, nevyhnete sa otázke, čo vlastne drží sklenenú budovu pokope. To, čo vnímate, je dostatok svetla a otvorený priestor, ktorý dokážete obsiahnuť pohľadom. Pre nás bolo veľmi dôležité dodržať zásadu transparentnosti. Mnohí návštevníci sem prídu po prvýkrát a potrebujú mať jasnú predstavu o tom, aké je múzeum veľké, kam majú ísť, čo všetko si môžu pozrieť. Ak sa tu cítia komfortne, takmer ako doma, určite tu ostanú dlhšie,“ vysvetľuje podrobne filozofiu návrhu van Heeswijk. Realizácia nového vstupu trvala od apríla 2014 do augusta 2015. O tom, že výstavba v centre Amsterdamu má svoje zvláštnosti, hovorí John van der Spek, riaditeľ a majiteľ spoločnosti Bouwbedrijf van der Spek BV: „Ako hlavný dodávateľ sme fungovali najmä ako styční dôstojníci pre rôzne zúčastnené strany.
Rez priestorovým modelom múzea s novým vstupom.
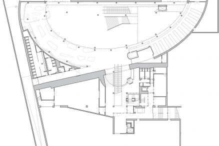
Situácia
Bola to pre nás najmä logistická výzva – zvládnuť prepravu tovaru do a von z centra mesta. Technickou výzvou však bola aj konštrukcia šachty pre eskalátor a výťah v hĺbke 6 m. Museli sme nechať zamrznúť podzemnú vodu, prepíliť betón a dostať von zamrznutú zem. Potom sme mohli nainštalovať šachty, eskalátory a celosklenený výťah.“ Nový vstup do Van Goghovho múzea nie je veľká stavba. To, čo architekti vytvorili použitím maximálneho množstva skla s minimom ocele, si však ako malý technický zázrak zaslúži takmer rovnakú pozornosť ako samotné umenie, pre ktoré sem návštevníci mieria.
Detail fasády so skleneným nosníkom a oceľovými stĺpmi
Nový vstup do Van Goghovho múzea
Miesto: Museumplein, Amsterdam
Investor: Van Gogh Museum Foundation
Návrh konceptu nového vstupu: Kisho Kurokawa
Spoluautor nového vstupu: Hans van Heeswijk Architects
Projektový tím: Jasper Druijven, Richard Gouverneur, Stephanie Haumann, Hans van Heeswijk, Rob Hulst, Ronno Stegeman, Boaz van der Wal
Návrh: 2012 – 2014
Realizácia: 2014 – 2015
Plocha prístavby: 975 m2
Celkové náklady projektu: 20 mil. eur
Text: Mária Nováková,
Dokumentácia: Hans van Heeswijk Architects
Článok bol uverejnený v časopise ASB.






















