Späť na článok Nový vstup Van Goghovho múzea
3 / 18
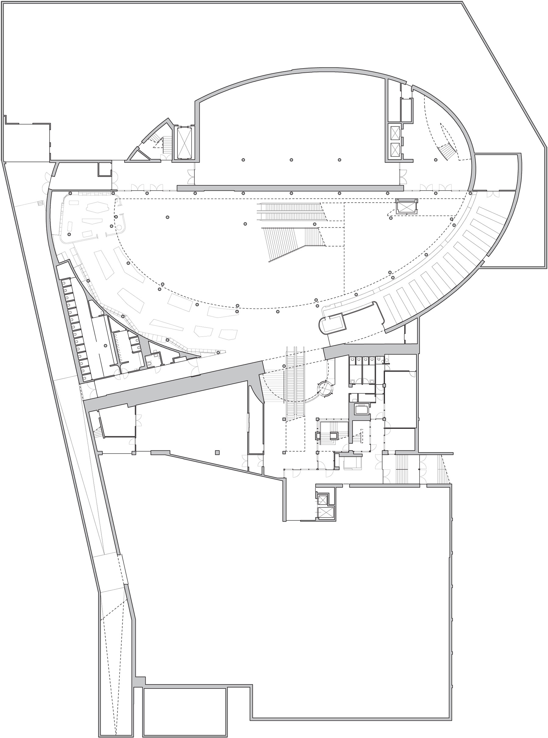
01 VanGoghMuseum HvHArchitects plan basement