Späť na článok Nový vstup Van Goghovho múzea
5 / 18
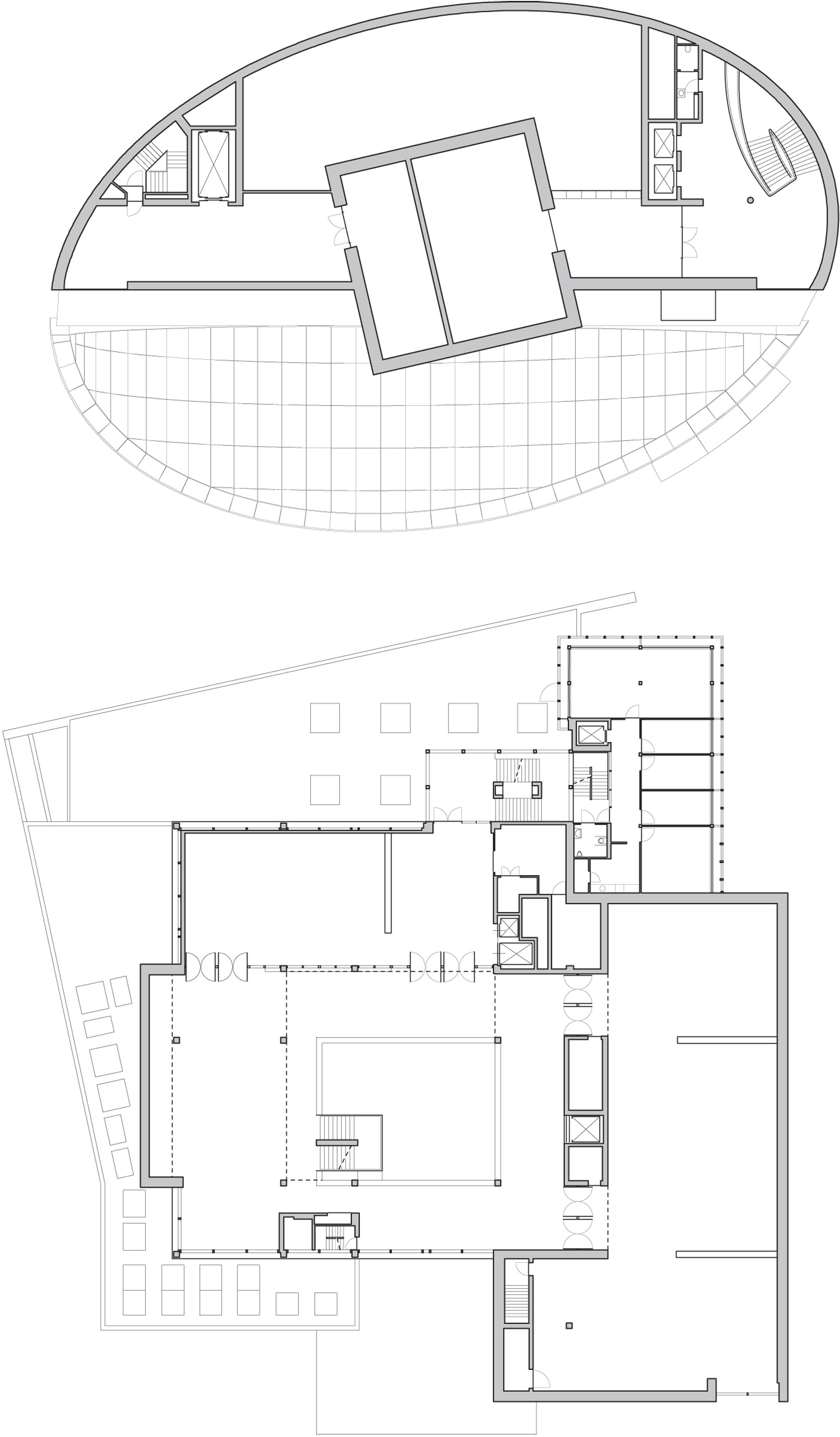
03 VanGoghMuseum HvHArchitects plan 1foor