Na mieste bývalého brownfieldu vyrástla nápaditá kancelárska budova
Nová podoba kancelárskych priestorov je v tomto segmente témou dňa. Rozmerovo skromnejšia, zato bohatá na zaujímavé nápady je novostavba v dánskom Aarhuse.
Mesto v roku 2017 nesie titul Európske hlavné mesto kultúry. Tento titul prináša nové impulzy rozvoja, mobilizuje v obyvateľoch tvorivosť, priťahuje návštevníkov. Dalo by sa povedať, že dobije mestu energetický potenciál na niekoľko rokov dopredu. Prípravy sú spojené obvykle s významnými úpravami verejných priestorov, hľadajú sa nové možnosti využitia dosiaľ redundantných plôch.
Veľmi podobne je na tom aj druhé najväčšie dánske mesto. V Aarhuse, ktoré leží severozápadne od Kodane, žije približne štvrť milióna obyvateľov. Navyše je sídlom Aarhus University, ktorú rôzne rankingové hodnotenia zaraďujú do prvej stovky najlepších univerzít na svete. Navštevuje ju takmer 45 000 študentov.
Transparentná fasáda poskytuje dokonalý prehľad o živote vo vnútri kancelárií.
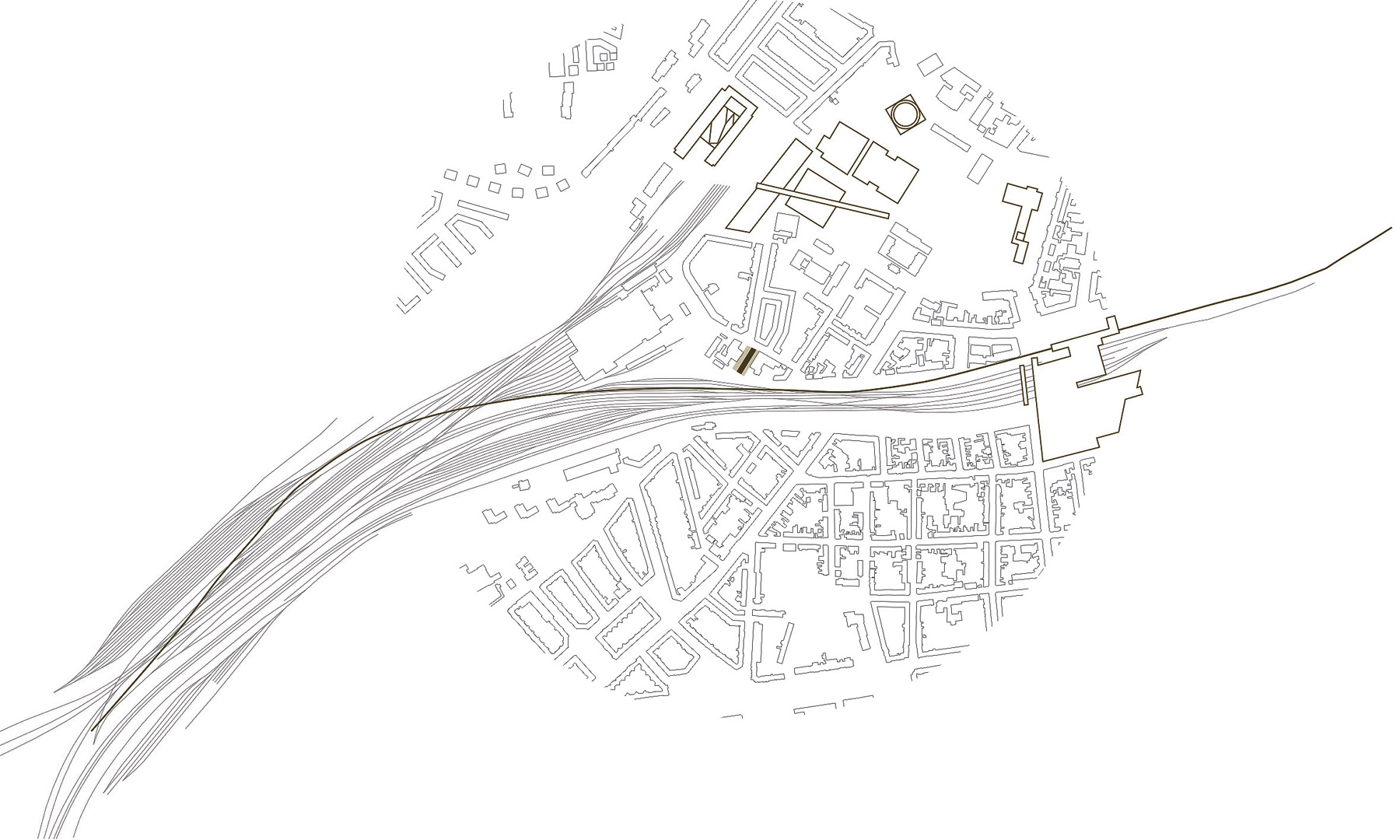
Aarhus je aj významné prístavné mesto. O industriálne plochy a bývalé prekladiská tu nie je núdza a práve v súvislosti s tohtoročným titulom sa pre tieto územia hľadali nové riešenia, ako ich premeniť na životaschopné kultúrne urbánne celky. Pred rovnakou výzvou stáli aj architekti zo štúdia SLETH, ktoré vlastnia aj vedú Søren Leth a Rasmus Therkildsen. Pri budove Sonnesgade 11 mali hneď trojakú úlohu: ako vlastníci pozemku, developeri a autori architektonického riešenia.
Na starých základoch
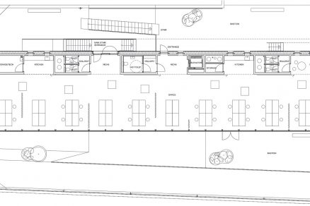
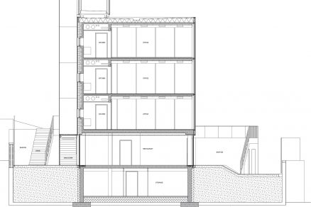
Brownfieldový pozemok spojili s ambíciou využiť vo svojom priestorovom riešení industriálny potenciál a jeho materiálovú kvalitu. Na tomto základe doslova postavili svoju budovu, keďže skutočné základy novopostaveného objektu tvoria podzemné konštrukcie predošlej stavby. Budova je pomerne malá, má len štyri nadzemné a jedno podzemné podlažie, ich dĺžka je 50 m.
![]() |
| Pohľad do seversky čistého interiéru |
Mierka objektu je však v tomto prípade významným a kľúčovým elementom pri tvorbe neformálneho pracovného prostredia. Vnútorné usporiadanie prináša veľkú flexibilitu a možné prepojenia aj medzi podlažiami. To je základom na vznik interaktívneho a synergického kancelárskeho priestoru, ktorý nezväzuje, naopak, ponúka nečakané aj plánované stretnutia.
Praskliny na fasáde
Na zdanlivo jednoduchej kancelárskej budove architekti vysunuli únikové schodisko do exteriéru. Utilitárny komunikačný prvok maximálne odľahčený od masívnych materiálov funguje ako poznávací znak, miesto prepojenia medzi výškovými úrovňami a tiež medzi interiérom a exteriérom. V interiéri k nemu priliehajú aj všetky obslužné funkcie ako hygienické zariadenia, kuchynky a skladové miestnosti.
Cez „praskliny“ je presvetlené hlavné vertikálne komunikačné jadro.
Architektúra objektu je inak jednoduchá, autori si odpustili ďalšie nápadné objemové prvky aj výraznú farebnosť. Pohrali sa len s tvaroslovím fasád, každá má iný charakter. Z dvoch strán je budova otvorená veľkoplošným zasklením, jedna je úplne hladká, druhá má subtílne orámovanie, ktoré má aj tieniacu funkciu. Na opačnej strane budovu objíma kompaktná fasáda z pohľadového betónu. Potešenie zo surového betónu si autori dopriali aj v interiéri.
![]() |
| Kancelárska budova má pomerne malú mierku. O to ľahšie za začleňuje do okolitej zástavby. Ako základy navyše využíva pozostatky predošlej stavby. |
V kombinácii s kovovou mriežkou na únikovom schodisku či kapotáži technických zariadení na streche je betón príjemným odkazom na industriálnu minulosť lokality. Z objemu stavby sa subtílnym oddilatovaním vyčleňuje blok vnútorného schodiska. Presvetlenie vertikálnej komunikácie vyriešili architekti vtipnými fasádnymi prasklinami, ktoré zvnútra ponúkajú originálne priehľady von.
![]() |
| Kancelárska budova má pomerne malú mierku. O to ľahšie za začleňuje do okolitej zástavby. Ako základy navyše využíva pozostatky predošlej stavby. |
Na dôvažok, pri večernom osvetlení dostáva táto fasáda tajomný nádych.
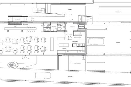
Terén okolo budovy je nerovný a tam, kde sa jeho sklon otvára smerom k verejnému priestoru, vytvorili architekti na prízemí priestor na reštauráciu. V podzemí je ešte vínotéka a parkovacia garáž.
Situácia
Kancelárska budova Sonnesgade 11
Miesto: Aarhus, Dánsko
Architekti: SLETH
Hlavný inžinier projektu: Søren Jensen Engineering Consultants A/S
Krajinná architektúra: SLETH
Podlažná plocha: 2 800 m²
Ukončenie výstavby: 2016
Aarhus, Dánsko
Text: Mária Nováková
Foto: Rasmus Hjorsthøj C O A S T
Dokumentácia: SLETH
Článok bol uverejnený v časopise ASB 3/2017.

















