Späť na článok Na mieste bývalého brownfieldu vyrástla nápaditá kancelárska budova
5 / 14
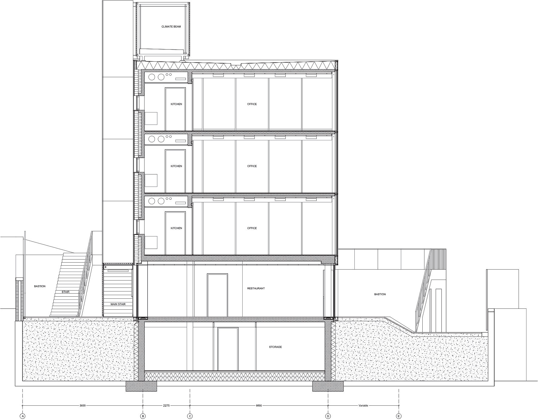
05 SG11 Section
05 SG11 Section
ASB Logo ASB Logo