Späť na článok Na mieste bývalého brownfieldu vyrástla nápaditá kancelárska budova
1 / 14
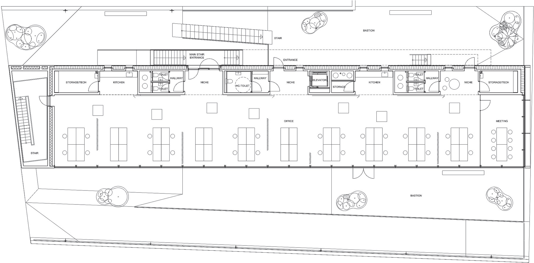
01 SG11 1st Floor Plan
01 SG11 1st Floor Plan
ASB Logo ASB Logo