Montáž okien KALYPSO AKTIV bez tepelných mostov
Pri výbere okien venujeme pozornosť množstvu čísel ako je Ug, Uf, Uw, počet komôr a podobne. Za polovicu úspechu však zodpovedá práve správne navrhnutá a dobre zrealizovaná montáž.
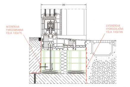
Trojrovinová montáž s páskami sa postupne stáva súčasťou moderných stavieb, ale ani ona nedokáže všetko. Chladná podlaha pri posuvnom presklení alebo pri dverách, či padajúci chlad od okien je následkom práve tepelných mostov spôsobených montážou. Častou chybou býva vyriešenie spodného detailu pri napojení výrobku na podlahu alebo nedostačené zateplenie horného detailu pri montáži exteriérovej tieniacej techniky.
Spoločnosť KALYPSO používa prepracovaný systém „montáž AKTIV“, ktorý eliminuje tepelné mosty v maximálnej možnej miere. Dôležitá je včasná konzultácia, najlepšie ešte v priebehu projekcie. V tomto štádiu vieme spoločne navrhnúť umiestnenie okien v rámci ostení, či už na stred, na hranu alebo predsadenú montáž a zároveň vybrať najvhodnejší variant napojenia výrobkov, zosúladenie okien z exteriérovou tieniacou technikou a zateplením.
KALYPSO SK, s.r.o.
Pečnianska 1-3, Bratislava
web: www.kalypso.sk
tel. 02/16 123
e-mail: ponuka@matporiadneokno.sk








