Späť na článok
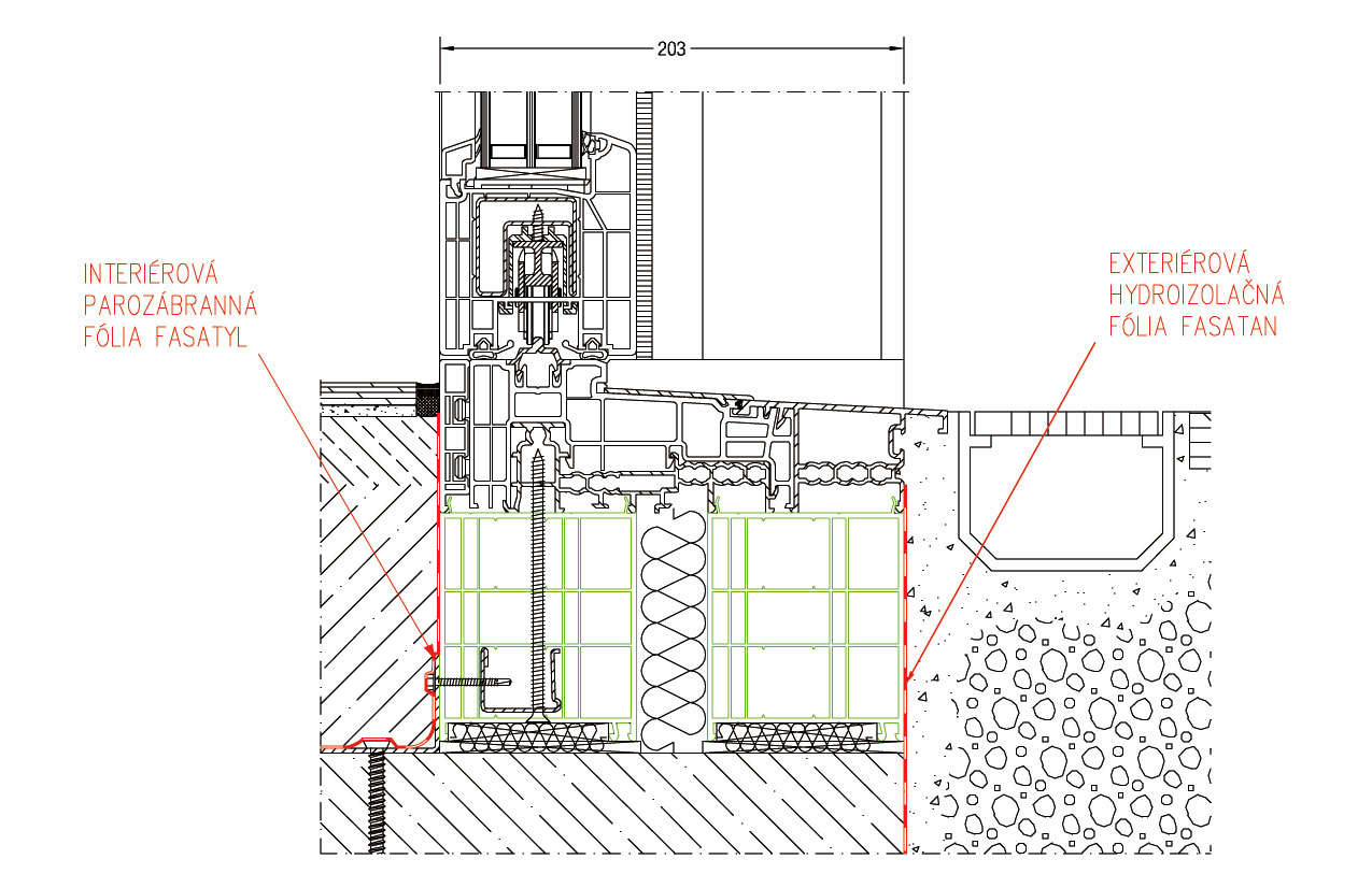
Montáž okien KALYPSO AKTIV bez tepelných mostov
4 / 6
spodny detail HST zdvizno