Obnova fasády Stavebnej fakulty STU
Pôvodná fasáda výškovej budovy Stavebnej fakulty STU v Bratislave počas tridsiatich šiestich rokov existencie splnila svoj účel. Čas a vonkajšie vplyvy však na fasáde zanechali viditeľné odtlačky, a preto sa vedenie fakulty rozhodlo pre jej obnovu. Okrem funkčného hľadiska zohralo pri výbere vhodného riešenia a materiálov dôležitú úlohu aj estetické hľadisko. Snahou bolo zohľadniť napríklad fakt, že v bezprostrednej blízkosti fakulty sa nachádza moderná budova Národnej banky.
Dohľad nad projekčnými prácami, ako aj počítačové overovacie simulácie a testovacie práce v laboratóriách zabezpečovala Katedra konštrukcií pozemných stavieb Stavebnej fakulty, sídliaca priamo v budove.
Opláštenie bolo konštrukčne vyhotovené ako závesné panely. Tie pozostávali z oceľového rámu, okennej časti a neprehľadnej parapetnej časti. Zavesené panely boli veľkosti 1,5 m krát na výšku podlažia, čo zodpovedá aj modulovému členeniu fasády. Horná časť okennej výplne s rozmermi 1 500 × 1 450 mm
bola otvárateľná. Pod ňou sa nachádzalo sklopné krídlo s rozmermi 1 500 × 550 mm. Parapet tvoril z vonkajšej strany hliníkový trapézový plech, z vnútornej strany drevovláknitá doska, medzi nimi sa nachádzala tepelná izolácia na báze čadičovej vaty.

![]() |
![]() |
| Parametre pôvodnej fasády Koeficient prechodu tepla oknami: Ug ≤ 3,0 (W/(m2 . K)) Svetelná priepustnosť: TL ≥ 75 % Vzduchová nepriezvučnosť: Rw ≤ 32 dB Priepustnosť slnečnej energie: g ≤ 50 % Nové zasklenie – severovýchodná strana Nové zasklenie – juhozápadná strana |
–>–>

Prvé štúdie obnovy plášťa sa začali spracovávať už v roku 2007. V rámci výučby ateliérovej tvorby študenti fakulty pod vedením profesora Antona Puškára a docenta Petra Černíka riešili rôzne materiálové možnosti. Výsledkom týchto ateliérových štúdií bolo zistenie, že najvhodnejšou technológiou na obnovu plášťa by bol niektorý zo súčasne dostupných fasádnych systémov kombinujúci hliník a tepelnoizolačné sklo.
Projekt na stavebné povolenie vznikol na Stavebnej fakulte STU v Bratislave na prelome rokov 2008 a 2009. Dohľad nad projekčnými prácami, ako aj počítačové overovacie simulácie a testovacie práce v laboratóriách zabezpečovali pracovníci Katedry konštrukcií pozemných stavieb danej fakulty. Tak ako aj na starom, tak aj na novom architektonickom stvárnení opláštenia sa podieľal pôvodný autor budovy architekt Oldřich Černý. Realizačný projekt s aplikáciou systému Sapa Building System zabezpečila firma Ingsteel ako generálny dodávateľ stavebných a montážnych prác.

Nový obvodový plášť je konštrukčne riešený ako hliníková bloková element fasáda, so šírkou elementu na dva moduly, teda 2 × 1 500 mm a s výškou 3 000 mm. Zvolené riešenie zohľadňovalo limitujúce časové faktory a požadovaný technologický postup. Obnova fasády totiž prebiehala počas prevádzky budovy. Vzhľad severovýchodnej a juhozápadnej fasády je na pohľad takmer identický. V skutočnosti však ide o dva rozdielne typy opláštenia, pričom v prípade juhozápadnej fasády sú styky rámov zväčšené.
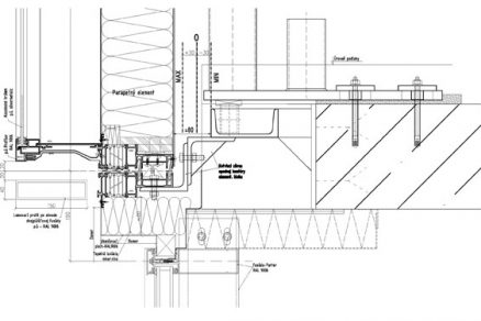
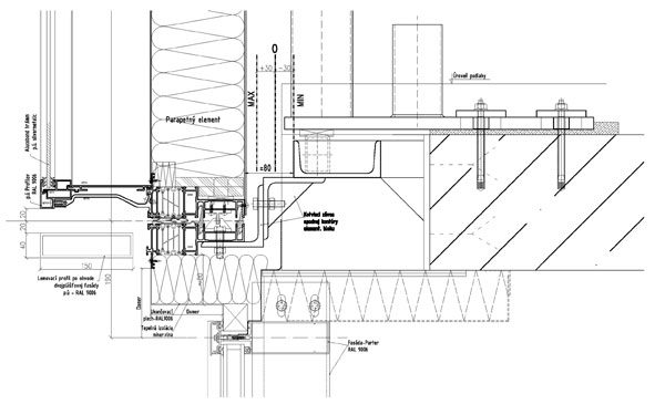
Konštrukčná skladba fasády zo severovýchodnej strany
Severovýchodná fasáda sa riešila ako jednoplášťová, s použitím izolačného trojskla. Hliníkové profily majú prerušený tepelný most, s hodnotou prechodu tepla Uf ≤ 2,0 (W/(m2 . K). Sklopné okno v spodnej časti je vybavené obmedzovačom sklopenia, s tromi závesmi na spodnej a tromi uzatváracími bodmi na vrchnej časti. Horné zasklenie je pevné. Nad týmto zasklením je osadený netransparentný diel. Ten je z exteriéru pohľadový, vyplnený minerálnou vlnou s hrúbkou 150 mm a doplnený materiálom s vysokou mernou hmotnosťou (nad 1 000 kg/m3) na báze cementotrieskovej dosky. Vzduchová nepriezvučnosť panelu je Rw ≥ 36 dB. Na transparentných častiach sa z interiérovej strany nachádzajú ručne ovládané žalúzie. [1]

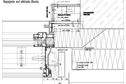
Juhozápadná fasáda je dvojplášťová s prevetrávaným medzipriestorom. Hliníkové rámy vonkajšieho plášťa sú v každom rastri zmenšené, čím vznikajú vetracie škáry so šírkou 40 mm. Na zasklenie transparentných polí sa použilo kalené sklo. Plný, horný diel tvorí neizolovaný panel z hliníkového plechu s povrchovou úpravou realizovanou vypaľovaným lakom. Bočné a spodné steny medzipriestoru so šírkou 200 mm sú perforované. Perforácia umožňuje prevetrávanie. Otvory na prívod vzduchu do medzipriestoru sú umiestnené horizontálne, v spodnej časti blokov a na spodnej strane bočných zvislých častí elementu. Odvod vzduchu sa nachádza v hornej časti zvislých profilov v strede dvojdielneho elementu. Tvar, hustota a rozmiestnenie vetracích otvorov sa navrhlo tak, aby sa dosiahol krížový efekt vetrania. Celková plocha vetracích otvorov na medzipriestor v rastri 1 500 × 3 000 mm predstavuje 2 500 cm2 – 1 250 cm2 na vstup a 1 250 cm² na výstup. Vetracie otvory prekrývajú antikorové mriežky s rozmermi asi 2,5 × 2,5 cm s voľnou plochou nad 70 %. V medzipriestoroch sú osadené hliníkové lamelové žalúzie s lamelami so šírkou 60 mm a antikorovým poplastovaným vodiacim lankom. Žalúzie sa ovládajú elektronicky z každej miestnosti.
Na zasklených častiach vnútorného plášťa sa použili izolačné dvojsklá. Rám tvoria hliníkové profily s prerušeným tepelným mostom, s hodnotou prechodu tepla Uf ≤ 2,0 (W/(m2 . K). Spodné sklápacie krídlo je určené na vetranie, horné otváracie krídlo s celoobvodovým kovaním má servisný charakter, slúži na čistenie a údržbu medzipriestoru. Horný, netrasparentný, tepelno- a zvukovoizolačný panel vypĺňa tepelná izolácia na báze minerálnej vlny s hrúbkou 150 mm doplnená materiálom s vysokou mernou hmotnosťou (nad 1 000 kg/m3) na báze cementotrieskovej dosky. [1]
Predmetom úprav sa stali aj fasády spojovacieho bloku a spodná časť juhozápadnej fasády, ktorú navrhli z hliníkovej konštrukcie typu stĺpik-priečka v pôvodnom členení.
Ukážka kultivovanej realizácie stavebnej obnovy
Nové rámy a plné výplne parapetov majú svetlosivý odtieň. Zvolené farebné riešenie možno považovať za čisté a racionálne. Pri pohľade na budovu z väčšej vzdialenosti však svetlé výplne parapetov vytvárajú kontrast s tmavými zasklenými plochami, čím sa zosilňuje horizontalita čelných priečelí. Tým sa čiastočne oslabil výraz budovy, ako elegantnej dosky – monolitu. Na druhej strane, z hľadiska stavebnej fyziky sa použitím svetlých farieb znižuje v letnom období celková tepelná záťaž budovy. Pri schodiskových fasádach sa aplikovali pevné hliníkové lamely prúdnicového tvaru s horizontálnym ukladaním. Podarilo sa tak eliminovať problém posunutia rastra pri medzipodestách, čo pri pôvodnej fasáde spôsobovalo istú disharmóniu. Budova síce pre dvojitú fasádu z juhozápadnej strany zhrubla, z pohľadu celku možno však túto zmenu považovať za zanedbateľnú. Aj keď v dnešnej architektúre už nie je dvojplášť ničím výnimočným, stále dokáže upútať pozornosť, dodať pocit kvality a akýsi high-tech výraz. Čo sa týka interiéru, plusom je komfortné ovládanie okien a žalúzií, ktoré užívatelia určite ocenia. Na druhej strane masívnejšie vyhotovenie parapetov zasahuje viac do úžitkovej plochy.
Výmenu fasády výškovej budovy Stavebnej fakulty možno zaradiť medzi kultivované realizácie obnovy v Bratislave. Z budovy donedávna pôsobiacej značne zanedbaným dojmom dnes vyžaruje usporiadanosť a funkčnosť. Nové opláštenie nadväzuje na pôvodný vzhľad a rešpektuje autorské práva. Jej stavebnotechnické riešenie reflektuje súčasné trendy a možnosti stavebnej produkcie pri požadovaných nákladoch.
TEXT: prof. Ing. Anton Puškár, PhD.Ing. arch. Blažej Bánó
OBRÁZKY a FOTO: archív autorov, Dano Veselský
Prof. Ing. Anton Puškár, PhD. je vedúcim Katedry konštrukcií pozemných stavieb Stavebnej fakulty STU v Bratislave.
Ing. arch. Blažej Bánó je doktorandom na Stavebnej fakulte STU v Bratislave.
Literatúra
1. Kráner, Ľ. – Bursík, V.: Obnova obvodového plášťa budovy Stavebnej fakulty STU v Bratislave, Technická správa, Súťažné podklady na výber dodávateľa obnovy obvodového plášťa, 2009.
Článok bol uverejnený v časopise Správa budov.















