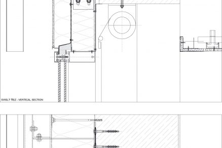
Detail riešenia metalickej perforovanej fasády
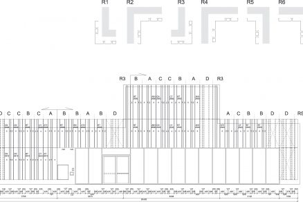
Hľadali sme spôsob, ako členitý pôdorys a rôzne výšky obvodového plášťa zjednotiť do logického celku,“ vysvetľuje architekt Martin Rudiš dôvod, prečo zvolili predsadený kovový plášť fasády, ktorý sa stal hlavným výrazovým prvkom exteriéru.
„Dôležité bolo, aby fasáda svojím materiálovým a technickým stvárnením prezrádzala obsahovú náplň budovy,“ hovorí architekt. Pôsobí ľahko a zároveň jednoznačne. Čiastočnú transparentnosť sme dosiahli perforáciou. Jemná textúra dodáva stavbe krehkú a odľahčenú estetiku.“
Štruktúru fasády tvoria kazety vyrobené z hliníkového perforovaného plechu so špeciálnou striebornou farbou. Idea formálneho stvárnenia plášťa vznikla úplne náhodou pri počítačovom spracovaní digitálnej fotografie juhočeského lesa. Vďaka posterizácii vytvorili kmene stromov plochu s rôzne intenzívnymi farebnými zvislými pruhmi. Čiernobiele spracovanie tejto štruktúry bolo potom radikálnou skratkou transformované na zapamätateľnú výtvarnú formu.
Hvezdáreň a planetárium Brno
Miesto: Kraví hora, Brno
Architekt: Martin Rudiš
Spoluautori: Alena Stehlíková, Martin Komárek
TEXT: Kateřina Kotalová
Foto: Filip Šlapal, Martin Rudiš
Dokumentácia: Martin Rudiš









