Späť na článok
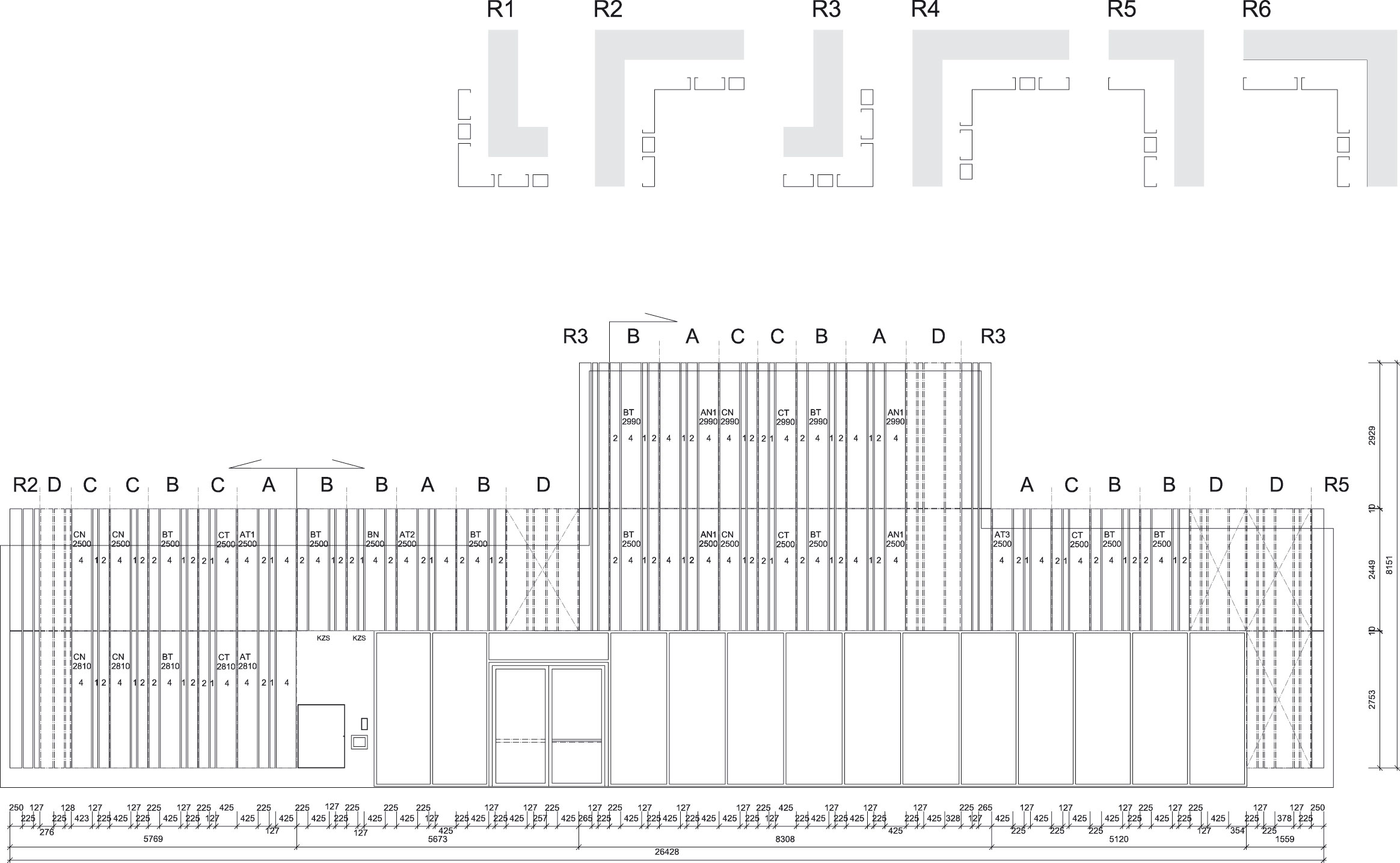
Detail riešenia metalickej perforovanej fasády
4 / 6
fasada detaily2