Pasívny slamený dom – rozhovor s architektmi
Viac o projekte pasívneho rodinného domu so slamenou izoláciou prezradili jeho samotní autori Ing. arch. Jan Márton a Ing. arch. Petr Klápště.
Ako využiť recyklované materiály pri stavbe pasívneho domu si môžete prečítať v článku: Pasívny slamenný dom
Horské prostredie a pasívny štandard nejdú príliš dokopy, alebo áno?
V prípade pasívneho domu záleží predovšetkým na tepelno-technických vlastnostiach obvodovej konštrukcii, aspoň pokiaľ ide o stredoeurópske klimatické podmienky. Čím chladnejšie prostredie, tým sa zvyšujú požiadavky na kvalitu tepelnej izolácie a okenných či dverových výplní. Ďalším významný vplyv majú solárne zisky zo slnka, ktorú sú schopné pokryť až dve tretiny tepelných strát pasívneho domu. V rakúskych Alpách sme navštívili dom, ktorý je vykurovaný jedným malým ventilátorom s elektrickou špirálou, ktorý si obyvatelia prenášajú z miestnosti do miestnosti podľa potreby. Je to spôsobené tým, že v Rakúsku majú priemerne približne o 60 slnečných dní viac, takže paradoxne môže mať rovnaký dom v Alpách menšie tepelné straty ako v Jablonci nad Nisou, kde je počas zimy často zamračené.
Aké špecifické opatrenia si vyžaduje realizácia rodinného domu v pasívnom štandarde v horských podmienkach?
Žiadne špecifické opatrenia nie sú potrebné, len je potrebné dom optimalizovať na miestnu klímu. V Jablonci to znamenalo navrhnúť z tepelno-technického hľadiska nadštandardnú obalovú konštrukciu a v prípadoch, kde nechceli ma obyvatelia domu vykurovacie telesá priamo pod oknami aj špičkové okná s medzerou medzi zasklením vyplnenou kryptónom. Pasívny dom v horskom prostredí Českej republiky, ale aj Slovenska je však už ekonomicky na hrane.
Zaujímavosťou tohto projektu je použitie recyklovaných stavebných prvkov na jeho výstavbu. Sledovali ste tým naplnenie súčasnej požiadavky na trvalo udržateľnú výstavbu?
Na pozadí navrhovania v našom ateliéri sa stále vznáša vedomie, že príroda nie je dojná krava, ktorú môžete vyžmýkať a poslať na jatka. Pravidelne sledujeme správy IPCC aj energetickú situáciou vo svete. Na základe toho sa snažíme usmerňovať klientov tak, aby sa rozhodovali pre použitie prírodných materiálov a niekedy hľadáme aj materiály recyklované. Každý má však v tomto ohľade inak nastavené limity a možnosti, či už psychologické alebo finančné. Okrem použitia materiálov s nízkymi emisiami a zviazanou primárnou energiou dbáme na pasívny štandard a prevádzku domu s využitím obnoviteľných zdrojov. Pasívny dom, ktorý je vykurovaný elektrinou zo siete, pri exitujúcom mixe v Českej Republike, spotrebuje za 80 rokov na výstavbu a prevádzku 2 až 3× viac neobnoviteľnej energie ako identický pasívny dom prevádzkovaný použitím obnoviteľných zdrojov.
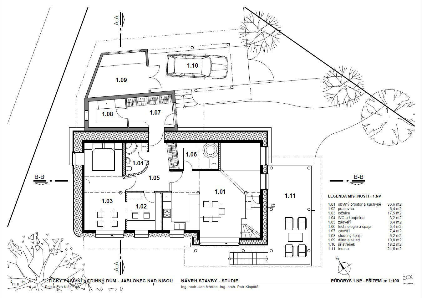
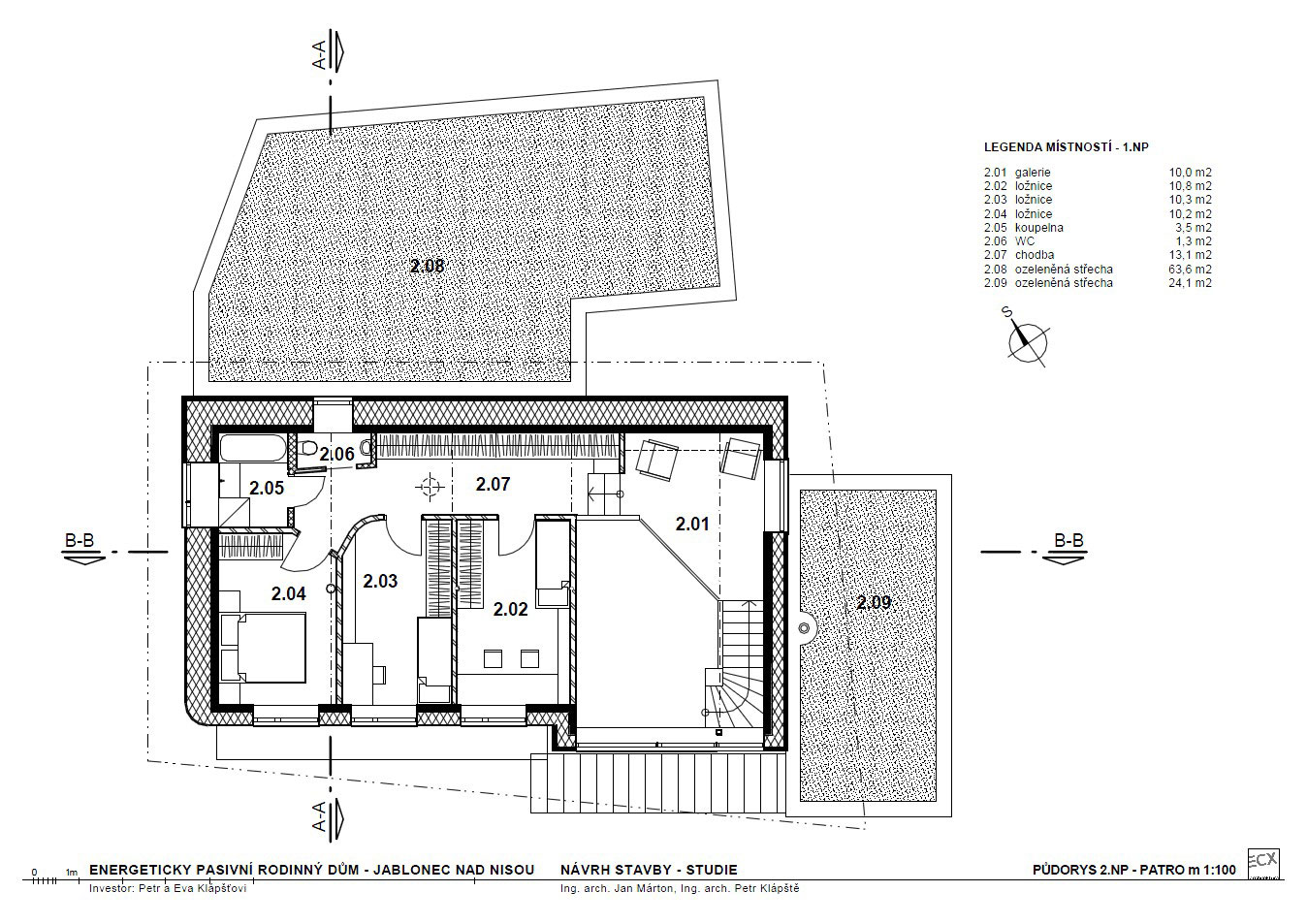
Sami sme mali možnosť si to na prípadovej štúdii overiť. Takže je potrebné sa zaoberať celým životným cyklom domu vo všeobecnosti, vrátane jeho likvidácie. Ďalšie úvahy môžu viesť smerom ku flexibilite pôdorysu tak, aby bolo možné dom jednoducho prestavať na nové podmienky. Konkrétne v prípade tohto rodinného domu sme znovu využili betónové prefabrikované stĺpy zo zrušeného elektrického vedenia a to ako základové pilóty, použité cestné panely na strop pivnice, fúkaná izolácia z recyklovaného papiera a tehlový recyklát ako základ substrátu zelenej strechy.
Ako sa možno k takýmto stavebným prvkom dostať?
Recyklované materiály okrem štandardných produktov sa zháňajú veľmi náročne. Prírodné materiály sú v našom stredoeurópskom priestore dostupné bez problémov, len je potrebné vnímať ročné obdobie zároveň ich dodávku na stavbu zabezpečiť organizačne. Firmy tieto obidve požiadavky zabezpečujú v malom meradle zložito a teda za drahé peniaze.
Majú výrazný vplyv na výslednú cenu diela?
Pri stavbe na kľúč znamenajú prírodné a recyklované materiály znateľné predraženie stavby. Ich úžasná vlastnosť však spočíva v tom, že pri svojpomocnej práci sa možno naopak dostať na nižšiu cenu, pokiaľ stavebník nepočíta vlastnú prácu, prípadne má k dispozícii rodinu a priateľov ochotných pomôcť. V prípade svojpomocnej výstavby však zároveň vnímame po niekoľkých skúsenostiach mnohé limity, preto už na začiatku odhadujeme stavebníka ako osobnosť a podrobne s ním preberáme jeho možnosti, skôr ako mu navrhneme dom na jeho „svojpomocnú“ mieru.
Myšlienku recyklácie ste nasledovali aj v samotnej prevádzke domu. Ako využívajú majitelia domu napríklad dažďovú vodu zo záchytných nádrží?
Dažďová voda z podzemnej nádrže slúži na polievanie záhrady, pretože obyvatelia domu sú vášniví záhradníci. Čo sa týka využívania dažďovej vody z nádrží v rodinných domoch na splachovanie WC je tento systém úplne ekonomicky nenávratný. Existuje množstvo iných spôsobov ako sa správať úsporne, napríklad do podzemných nádrží odvádzať vodu zo sprchy, samozrejme pri použití biologicky rozložiteľných prostriedkov, alebo po kúpaní nechať stáť vodu vo vani. Jeden stavebník takto na 50 % pokrýval potrebu tepla na vykurovanie svojho pasívneho domu.
Aké ďalšie prvky podčiarkujú „zelenosť“ tohto projektu?
Okrem prírodných materiálov ako sú slamená izolácia, hlinené omietky, vápennopieskové priečky, drevovláknité izolácie a celulóza sme tu po prvýkrát vyskúšali založenie na vyradených železobetónových stĺpoch elektrického vedenia. Ide o dobre zvibrovaný betón, prakticky vodotesný. Bol to nápad stavebnej firmy Čanda, s. r. o., ktorý sa už rozšírila aj ďalej. Pri tomto riešení je potrebné dbať na niektoré špecifiká stĺpov, ale myslím si, že počiatočné problémy tohto spôsobu zakladania máme už za sebou.
Ďalším príjemným bonusom sú vegetačné strechy s rozličnou hrúbkou substrátu, na ktorých majiteľka, záhradná architektka, skúša rozličné zloženie zmesí a vysádza rozličné druhy sukulentov. Na časti striech bude aj jahodová záhrada. Okrem vlastností budovy sa na ochrane životného prostredia podieľa aj uvažovanie obyvateľov. Aj keď vedia, že stavba rodinného domu je voči prírode citeľne menej šetrnejšia ako bývanie v byte, po vlastnom bývaní a záhrade túžili. Parcelu preto vyberali podľa dopravnej dostupnosti, aby si nemuseli čo najdlhšie zadovážiť auto a hromadnou dopravou sa rýchlo dostali nielen do centra Jablonca, ale aj do Prahy.
Aký bol vzájomný vzťah medzi architektmi a majiteľmi, kto koho ovplyvnil viac?
Vzťah bol viac ako dobrý, pretože stavebníkom je môj priateľ z vysokej školy, rovnako architekt, ktorý sa však zaoberá územným plánovaním, participatívnym navrhovaním a konzultáciami. Jeho milú ženu som poznal na začiatku projektu, keď za mnou prišli so svojim návrhom, ktorý som následne poupravil objemovo aj dispozične. Ovplyvnenie bolo obojstranné, z mojej strany skôr technické a architektonické, zo strany stavebníkov skôr konkrétne v samotnej svojpomoci, ktorá ma postavila po prvýkrát pred takéto výzvy počas mojej praxe. Dom je výsledkom spolupráce, na ktorej sme v krátkom čase založili našu spoločnú kanceláriu Nature Systems. Dobré vzťahy pretrvávajú a to je nakoniec naša najlepšia vizitka.
Aké úskalia prinieslo projektovanie pasívneho domu s izoláciou zo slamených balíkov?
Z dnešného pohľadu sa nedá hovoriť o úskaliach, slamená izolácia je jedna z tých jednoduchších vecí, ktoré sme v priebehu výstavby riešili. Z technického hľadiska sme vymýšľali, ako dobre zaizolovať dom tak, aby vyhovoval miestnej horskej klíme. Preto sme pre tento dom použili do toho času neoverený systém zateplenia dvojitou vrstvou balíkov, ktorý používame úspešne ďalej pri navrhovaní pasívnych domov. Viac však s touto konštrukciou počítame v dispozičnom riešení domu.
A ako je to v skutočnosti s tými slamenými balíkmi, môžu sa použiť priamo tie, ktoré ostanú po žatve na poliach?
Áno, môžu, pokiaľ sú balíky iba zo stebiel slamy, bez zrna, buriny, hliny z úvratí a podobne. Stroj je potrebné nastaviť na vhodnú gramáž a použiť silnejšie povrazy. Mierna vlhkosť neprekáža, balíky jednoducho vyschnú v priebehu výstavby a tak či tak difúzne otvorená sa používa konštrukcia. Často sa stane, že balíky premoknú priamo na stavbe. Závisí od situácie, avšak vo väčšine prípadov sú aj naďalej použiteľné, pretože slama degraduje hnitím len veľmi ťažko.
TEXT: Nature Systems, Andrea Dingová, wad
FOTO: Nature Systems





















