Späť na článok
Pasívny slamený dom – rozhovor s architektmi
1 / 13
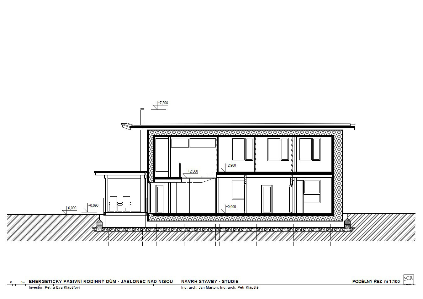
05 Rez B B