V jednoduchosti je krása i účelovosť: Dom ako nepopísaný list papiera
Architektonická tvorba Radima Babáka a MgA. Ondřeja Tobolu je charakteristická zmyslom pre funkčnosť, logiku, eleganciu a význam. O kvalite ich domov svedčí celý rad ocenení, napríklad naposledy to bola časopisom Můj dům vyhlásená cena Stavba roka 2016 za rodinný dom v Tehově. Predstavujeme vám ich ďalší elegantný moderný nepodpivničený dom s pôsobivým interiérom – rodinný dom Červené Pečky.
Dom si budú „vyfarbovať“ sami domáci
Podľa autorov sa tento projekt „vydal koncepciou hry s analógiou bieleho listu papiera, ktorý si bude rodina postupne sama vyfarbovať svojou prácou a zbierkou umenia svojich priateľov výtvarníkov.“
Základná hmota domu je úplne jednoduchý dvojpodlažný kváder, ktorý je zo strany ulice uzatvorený a maximálne sa otvára do záhrady veľkými zaskleniami na oboch podlažiach. Keďže zasklené časti sú orientované juhozápadne, prinášajú do interiéru aj množstvo svetla a tepla.
Knižnica cez dve podlažia
Ak sa vám zdá, že exteriér domu pôsobí fádne a interiér neprinesie žiadne zaujímavosti, mýlite sa. Práve interiér je riešený nezvyčajne a nápadito. Jeho dominantou je knižnica prerastajúca cez dve podlažia.
Okrem toho, že obsahuje niekoľko tisíc kníh, jej súčasťou je aj integrovaný kozub. Denné svetlo je do hlavného obytného priestoru privedené aj prostredníctvom troch kruhových svetlíkov umiestnených v strope. Číslo nie je zvolené len tak, ale symbolizuje počet členov rodiny. V noci je cez ne možné sledovať hviezdnu oblohu.
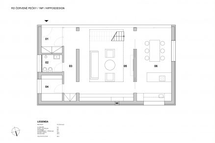
Priestor hlavnej obytnej miestnosti sa dá rozdeliť
Už zo samotného zariadenia domu vyplýva, že je určený pre umeleckú domácnosť s mnohými tvorivými koníčkami i prácou. Na prvom nadzemnom podlaží sa nachádza kuchyňa s jedálňou, ktoré nadväzujú na hlavný obytný priestor. Výhodou je, že vďaka posuvným dverám je možné v prípade potreby tento priestor rozčleniť na samostatnú kuchyňu s jedálňou a samostatnú obývačku. I keď je dnes trendom všetko spájať, mnohí už prišli na to, že má to aj svoje nevýhody, a tak je riešenie poskytujúce alternatívu veľmi výhodné. Ďalej sa tu nachádza práčovňa, sklad a malá kúpeľňa s toaletou. Prízemie je kompletne celé v priamom kontakte so záhradou plnou ovocných stromov.
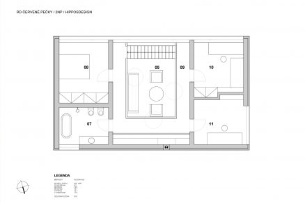
V kontakte s prírodou i s umením
Na druhom nadzemnom podlaží sa nachádzajú dve spálne, pracovňa a druhá väčšia kúpeľňa využívajúca zhod bielizne priamo do práčovne na prízemí. Sú v nej aj originálne 3D reliéfne obklady navrhnuté a vyrobené paňou domu. Tienenie domu je riešené exteriérovými screenovými roletami, ktoré sú opticky integrované do fasády. Aj keď to tu je určené viac-menej na víkendový pobyt, nie je problém zotrvať tu ľubovoľne dlho a cítiť sa pohodlne. Atmosféru domu dotvárajú diela výtvarníkov známych mien, ako sú K. Kintera, J. Černický, J. Valoch, J. Franta, D. Böhm, P. Dub a ďalší.
RD Červené Pečky v kocke
Architektonické štúdio: Hipposdesign
Autori: MgA. Radim Babák, MgA. Ondřej Tobola
Zastavaná plocha: 106 m2
Úžitková plocha: 148 m2, z toho 1. NP – 86 m2, 2. NP – 62 m2
Návrh: 2009 až 2010
Realizácia: 2012 až 2016
Lokalita: Červené Pečky, Česká republika
Sabína Zavarská
Foto: Filip Šlapal a archív Hipposdesign

















