Späť na článok V jednoduchosti je krása i účelovosť: Dom ako nepopísaný list papiera
2 / 25
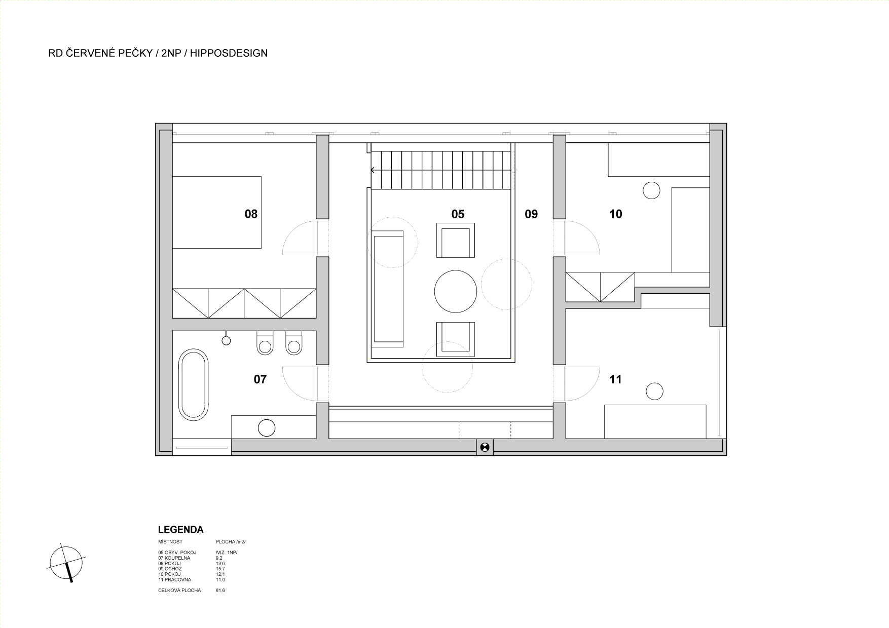
2NP
2NP
ASB Logo ASB Logo