Rodinný dom v Rusovciach splnil predstavy 4-člennej rodiny
Nenápadná, elegantná stavba vyrástla v Rusovciach (Bratislava) približne pred rokom. Patrí do portfólia renomovaného architektonického štúdia plusminusarchitects, ktoré si majitelia domu vybrali po prvotných konzultáciách o projekte. Už tradične – zrealizovaný projekt splnil najvyššie štandardy a naplnil predstavy štvorčlennej rodiny, ktorá sa zamilovala do Rusoviec. Stavba je jednou z nominácií tohtoročného udeľovania ocenení CEZAAR 2015 v kategórii Rodinné domy.
Dvaja rodičia a dve deti majú silne vyvinutého športového ducha a napriek prvotnému váhaniu sa rodina napokon rozhodla aj pre bazén. Dom a okolitá lokalita (Čunovské jazerá a príjemné prostredie vhodné na beh) im zabezpečujú dostatok príležitostí pre rozmanitý pohyb. Jedným z obľúbených športov sa stal aj pingpong, ktorý hrávajú v priestore medzi nočnou a dennou časťou domu (na krytej terase).
Interiér je ladený v tlmených odtieňoch sivej, čiernej a bielej, pričom ho vhodne dopĺňajú drevené prvky (podlaha, masívny nábytok). Čo sa týka materiálového riešenia, v interiéri vládnu betónové stropy (v obývacej časti aj steny), betón na podlahe sa strieda s drevom, podstatnú časť celkového vizuálu tvoria veľkoformátové presklené plochy – či už vo forme očarujúceho svetlíka v otvorenom priestore obývacej časti, alebo vo forme presklených častí obvodových stien a vnútorných priečok či dokonca v podobe zábradlia schodov vedúcich na poschodie.
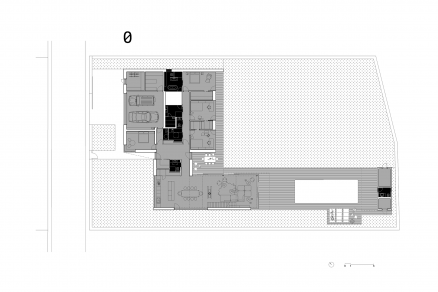
Overená kombinácia skla, betónu a dreva vytvára dojem čistého, kompaktného priestoru, ktorý príjemne prekvapuje svojou vzdušnosťou a veľkorysou priestrannosťou, či už vo vertikálnom alebo horizontálnom zmysle. Štyri spálne (rodičovská, hosťovská a dve detské), tri kúpeľne, obývačku, jedáleň, kuchyňu, garáž, technickú miestnosť a šatníky nájdeme na prízemí. Podlažie patrí pracovni, v ktorej majiteľ trávi pomerne dosť času a preto je na mieru prispôsobená jeho potrebám a predstavám.
Rovinatý pozemok, upravený trávnikom, štrkom, decentnou flórou a dokonca s priestorom pre pestovanie drobných plodín a bylín, chráni gabionový plot. Na jednom konci pozemku, priamo za bazénom, nájdeme prístrešok poskytujúci pohodlie pre letné večery v záhrade – prístrešok zastrešuje letnú kuchyňu s grilom a malé sedenie.
Prehľad:
Autori: Maroš Fečík, Miriam Fečíková – plusminusarchitects
Lokalita: Rusovce, Bratislava
Projekt: 05/2011 – 12/2011
Realizácia: 05/2012 – 09/2014
Pozemok: 1583 m²
Zastavaná plocha: 364 m²
Úžitková plocha: 323 m²
Objem priestoru: 1582 m³
O autoroch:
Prezentovaná stavba pochádza z dielne architektonického ateliéru plusminusarchitects. Ateliér plusminusarchitects vznikol v roku 2004 v Bratislave. V súčasnosti je zložený zo stálych členov Maroša Fečíka, Filipa Kandravého a ostatných spolupracovníkov či priateľov. Architekti sa venujú širokej škále projektov – od malých dizajnových objektov, cez interiéry a rodinné domy pre privátnych klientov, až po verejné stavby a urbanistické štúdie.
Každé zadanie vnímajú ako novú výzvu, architektom záleží na koncepte, ale aj na finálnom detaile. Držia sa hesla, že veci netreba prinášať ale odnášať, a preto sa architekti snažia aj svoje projekty vyčistiť na maximum – aby boli jednoznačné a pravdivé.
Text: Anna Martausová v spolupráci s Ing. arch. Marošom Fečíkom
Foto: Maroš Fečík – plusminusarchitects























