Späť na článok Rodinný dom v Rusovciach splnil predstavy 4-člennej rodiny
1 / 45
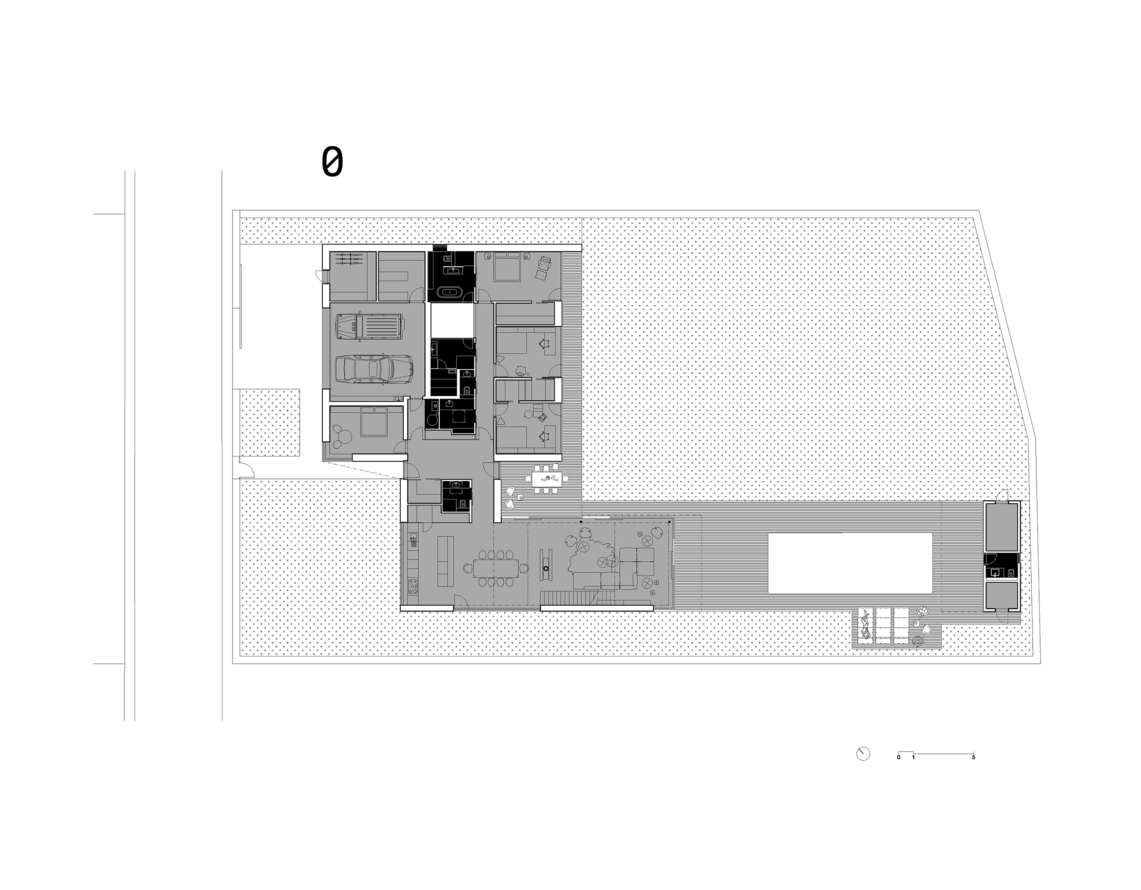
rusovce 1NP
rusovce 1NP
ASB Logo ASB Logo