Minimalistický dom v harmónii s okolím
Mladí zürišskí architekti Sarah Gatto a Adrian Weber navrhli rodinný dom, ktorý sa v okolitom prostredí vyníma vďaka jednoduchosti architektonických foriem a elegantnej bielo-čiernej farebnosti.
Na otázku týkajúcu sa vnímania objektu v kontexte s okolitou krajinou autori odpovedajú: „Závisí to od prostredia, v ktorom sa dom nachádza. V kontexte dobrej architektúry by sa mal dom začleniť do okolitého prostredia a mal by s ním harmonizovať. V architektonicky menej kvalitnom prostredí môže nový objekt zapôsobiť ako kontrast prinášajúci oživenie a vyššiu kvalitu architektúry.“ Typológia pôdorysu sleduje geometriu dvoch v horizontálnej línii nadväzujúcich štvorcov so stranou 9,5 m. Vznikol tak objekt 19 metrov dlhý a 9,5 metra široký. Situovaný je na úzkom rovnom pozemku s plochou 483 m2 a s východnou orientáciou. Z tejto strany sa ponúka pôsobivý výhľad do voľnej prírody, na slnečnicové pole ohraničené lesom.
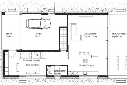
Dom je z ulice prístupný prekrytým chráneným vstupom, vedľa ktorého sa nachádza prístupová rampa do dvojitej garáže. Lodžia nad garážou umožňuje vychutnávať si posledné lúče zapadajúceho slnka.
Minimalistické formy
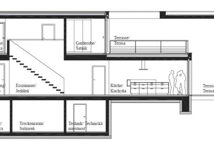
Architekti volili jasné, silno redukované minimalistické formy s dôrazom na harmóniu hmoty a proporcií. Napriek tomu, že čistá podlahová plocha domu je len 157 m2, pôsobí veľkoryso. Veľké čiastočne prekryté terasy zväčšujú jeho rozmery i úžitkovú plochu a poskytujú bývanie v spojení s prírodou. Navyše, týmto gestom získal dom na elegancii. Objekt je z ulice prístupný prekrytým chráneným vstupom, vedľa ktorého sa nachádza prístupová rampa do dvojitej garáže. Na vstupný priestor nadväzuje veľkým oknom presvetlená vstupná hala s výškou dvoch podlaží. Jej zadná časť slúži ako jedáleň. Výrazným akcentom sú v nej schody – do steny zasadené stupne, ktoré vedú na galériu a do privátnych priestorov. Ich žltá farba oživuje interiér, ktorý je súčasťou uceleného architektonického konceptu postaveného na troch farebných akcentoch: bielej, čiernej a žltej, sprevádzaných prírodným odtieňom dreva.
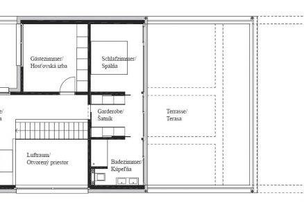
Vo východnej časti prízemia sa nachádza obývačka s kuchyňou, ktoré sú prostredníctvom posuvných okien prepojené s krytou terasou s plochou 29 m2. Počas príjemných slnečných dní sa tak vytvára jedna veľká obytná plocha otvorená do voľnej prírody. Moderná technická výbava kuchyne s ostrovčekom a barom má pracovné plochy obložené čiernym mramorom. Medzi obývacou izbou a jedálňou je malé hygienické zázemie pre hostí. Na poschodí sa nachádza galéria, súkromné priestory so spálňou, šatňou a kúpeľňou i hosťovská izba s lodžiou orientovanou na západ. Cez privátne priestory je prístupná veľká (50 m2) čiastočne krytá terasa s vírivkovým bazénom. Pred ostrým slnkom ju chránia elektricky ovládané látkové žalúzie, ktoré poskytujú tomuto miestu atraktívnu atmosféru súkromia. V suteréne s plochou 61 m2 sú technické a pracovné priestory – pracovňa, hobby izba, odkladacie priestory a technická miestnosť.
Strohú minimalistickú bočnú fasádu oživuje kruhové okno, ktoré prinaša denné svetlo do hygienického zázemia pre hostí. Veľké obdĺžnikové okno presvetľuje vstupnú halu, jedáleň a galériu. Čiastočne krytú terasu s vírivkovým bazénom chránia pred ostrým slnkom elektricky ovládané žlté látkové žalúzie, čo poskytujú tomuto miestu atraktívnu atmosféru súkromia.
Nízkoenergetický štandard
Zo statických dôvodov sú všetky vonkajšie steny domu z 22 cm hrubého železobetónu. Dom je kompletne tepelne izolovaný a zodpovedá nízkoenergetickému štandardu. Vo všetkých miestnostiach je podlahové kúrenie. Tepelnú energiu získava zo zeme prostredníctvom vodného tepelného čerpadla. Veľkoplošné dreveno-kovové trojvrstvové okná chránia pred prehrievaním počas letných mesiacov vonkajšie lamelové žalúzie. Minimalistický je v dome aj systém osvetlenia jednotlivých priestorov a obsahuje tri typy svietidiel: okrúhle svetelné objekty poskytujú difúzne svetlo (izby), jednoduché žiarivkové trubice (suterén a garáž) a v rôznej výške visiace veľké svetelné gule vytvárajú efektný element nad jedálenským stolom.
Dve vnútorné steny sú zo statických dôvodov vyhotovené zo železobetónu, ostatné vnútorné priečky sú z tehál alebo z tvárnic (suterén). Podlahy vo všetkých obytných miestnostiach pokrývajú dubové parkety. Drevené dosky použité na terase sa svojím sfarbením približujú parketovej podlahe vnútorných priestorov a tým opticky spájajú vnútorný a vonkajší priestor. Exteriérové aj interiérové steny, ako aj strop sú omietnuté a namaľované na bielo. Na okenné rámy a zábradlia architekti zvolili kontrastnú čiernu farbu. Interiér oživujú žlté schody, žltý bar a farebne výrazné obrazy. Žltý akcent rezonuje v podobe látkových žalúzií v exteriéri.
Otvorená, moderne technicky vybavená kuchyňa s ostrovčekom a barom má pracovné plochy obložené čiernym mramorom. Aj tu je zachovaný ucelený architektonický farebný koncept.
HAUS W + W
Miesto: Švajčiarsko, kantón Solothurn
Autori: Sarah Gatto a Adrian Weber
Projektový manažment: gatto.weber.architekten
Začiatok výstavby: august 2012
Ukončenie výstavby: október 2013
Celková podlažná plocha budovy: 270 m2
SARAH GATTO – MSc. arch. AAM. SIA OTIA
Štúdium: Accademia di Architettura, USI (Universita della Svizzera Italiana) v Mendrisio ukončené titulom Master of Arts v oblasti architektúry (2000 – 2006); profesori: Valentin Bearth, Mario Botta, Antonio Citterio, Kenneth Frampton, Aurelio Galfetti, Albert Jacquard, Marco Müller, Heinz Tesar, Peter Zumthor; Erasmus na Technickej univerzite v Berlíne (2003 – 2004); prax v ateliéri GJK arquitectos (Miguel de Guzmàn, Andrés Jaque, Enrique Krahe) v Madride (2001 – 2002); štúdium architektúry na ETH v Zürichu (1998 – 1999); maturita na Kantonálnom gymnáziu Kantonsschule Stadelhofen v Zürichu.
Spolupráca: architektonický ateliér Eisenhut Architekten, Zürich (2007) a Müller Verdan Architekten, Zürich (2008 – 2009).
Samostatná činnosť: od roku 2008 spoločný architektonický ateliér s Adrianom Weberom gatto.weber.architekten gmbh; členka Komory architektov Ordine degli Architetti, Pianificatori, Paesaggisti e Conservatorio v talianskej provincii Bresca (2009); na voľnej nohe ako príležitostná autorka tematických esejí o architektúre a politike (2010); členka spolku švajčiarskych inžinierov a architektov SIA (Schweizerischer Ingenier- und Architektenverein).
ADRIAN WEBER – MSc. arch AAM SIA
Štúdium: Accademia di Architettura, USI (Universita della Svizzera Italiana) v Mendrisio ukončené titulom Master of Arts v oblasti architektúry (2000 – 2006); profesori: Valentin Bearth, Mario Botta, Antonio Citterio, Kenneth Frampton, Aurelio Galfetti, Albert Jacquard, Marco Müller, Valerio Olgiati, Peter Zumthor; Erasmus na univerzite ETSAM v Madride (2003 – 2004); praktikant v architektonickom ateliéri Collins + Turner architects v Sydney(2002); maturita na umeleckom gymnáziu Liceo artistico v Zürichu (2000); jeden semester na Liceo artistico vo Florencii (1999).
Spolupráca: architektonický ateliér Wild Bär Architekten, Zürich (2006) a PEAK Architekten, Zürich (2007).
Samostatná činnosť: od roku 2008 spoločný architektonický ateliér so Sarah Gatto, gatto.weber.architekten gmbh, vlastný architektonický ateliér Weber Architekten (2007); čiastočný úväzok ako vedecký asistent v Ústave územného rozvoja (IRAP) v Rapperswil (2010 – 2011); člen spolku švajčiarskych inžinierov a architektov SIA (Schweizerischer Ingenier- und Architektenverein).
TEXT: ĽUDOVÍT PETRÁNSKY
Foto: RASMUS NORLANDER
dokumentácia: gatto.weber.architekten
Článok bol zverejnený v časopise ASB.
















