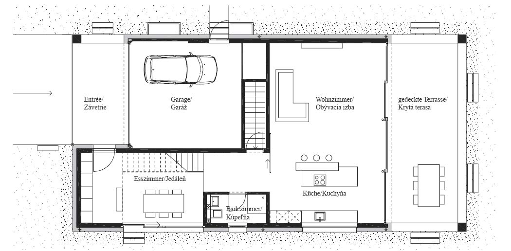
Späť na článok Minimalistický dom v harmónii s okolím
6 / 11
3
3
ASB Logo ASB Logo