Mierny svah môže byť pozitívom pre stavbu domu
Čoraz viac rodín vyhľadáva bydlisko, kde by mali dostatok pokoja, ale zároveň by nebolo ani bez potrebných služieb. Satelitné obce nie sú z tohto hľadiska dobre vybavené, preto sa zaujímavými stávajú okrajové mestské časti veľkomiest. Kedysi neslávne známa bratislavská Vrakuňa sa dnes stáva domovom mnohých mladých ľudí a výstavba domov tu prebieha vo veľkom. Jednou z novostavieb je rodinný dom od ateliéru plusminusarchitects.
Otvorený do súkromnej záhrady
Pozemok, na ktorom tento dom stojí, sa nachádza na severovýchodnom okraji Bratislavy, v bývalej záhradkárskej kolónii. Potreby majiteľov sa zmenili, a tak na mieste niekdajšej záhrady zvažovali možnosť stavby domu.
Z predstáv majiteľov a práce architektov vzišla príjemná, drevom obložená dvojpodlažná novostavba. Mierny sklon terénu architekti využili v prospech súkromia domácich: vytvára intímny slnečný priestor záhrady.
Mierny svah ako výhoda
Z čelného pohľadu vyzerá dom úplne nenápadne, rozvíja sa smerom dovnútra pozemku. Zaujímavým riešením sú dve výškové úrovne domu – kým predná časť je jednopodlažná, smerom do záhrady, kde sa svah zvažuje, vznikla dvojpodlažná časť domu.
Osadenie domu architekti prispôsobili orientácii slnka a potrebám obyvateľom, preto je zo strany ulice úplne uzatvorený – chráni súkromie domácich. Do záhrady je maximálne otvorený.
Bezbariérový prístup do záhrady
Medzi domom a záhradou je vytvorená praktická prechodová časť, ktorá je pred vplyvmi počasia chránená zastrešením. Vzniklo tu miesto na príjemné trávenie voľného času, ale aj hru detí.
Terasu tiež možno použiť ako exteriérové rozšírenie obývacej miestnosti – stačí len otvoriť posuvné zasklené dvere. Obývacia izba i kuchyňa majú bezbariérový prístup do záhrady.
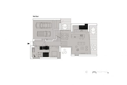
Ako je riešená dispozícia?
Na vstupnú halu nadväzujú telocvičňa, sauna, hygienické zázemie a hosťovská izba. Schodiskom sa dostanete do denných priestorov domu, ktoré tvorí kuchyňa, jedáleň a obývacia miestnosť s prekrytou terasou. Na druhom nadzemnom podlaží sa nachádza nočná časť domu. Tvoria ju izby detí a rodičov, hygienické zázemie a spoločenský priestor.
Množstvo skla i dreva
Z konštrukčného hľadiska je dom riešený kombinovane – oceľobetónovými a murovanými vertikálnymi konštrukciami. Strecha má obrátené poradie vrstiev a ukončuje ju riečny štrk. Hliníkové okná a zasklené steny s izolačným trojsklom dodávajú interiéru svetlo a približujú kontakt s exteriérom.
V prípade silného slnka si domáci môžu zatiahnuť vonkajšie hliníkové žalúzie. Interiér pôsobí harmonicky vďaka množstvu použitého dreva a kombinácii bielej s béžovou, ktorá je doplnená sivou.
Tento dom bol medzinárodnou porotou nominovaný na Cenu Dušana Jurkoviča 2015.
Rodinný dom vo Vrakuni v skratke
Architektonický ateliér: plusminusarchitects, www.plusminusarchitects.com
Autori: Maroš Fečík, Andrej Olah
Lokalita: Bratislava-Vrakuňa
Projekt: 2012
Realizácia: 2012 – 2014
Plocha pozemku: 579 m2
Zastavaná plocha: 202 m2
Úžitková plocha: 255,6 m2
Obstavaný priestor: 1405 m3
Sabína Zavarská
Foto: Maroš Fečík





















