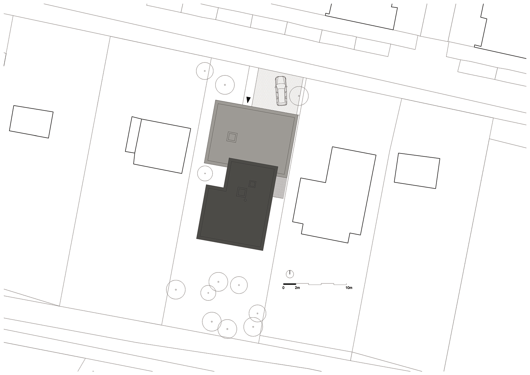
Späť na článok Mierny svah môže byť pozitívom pre stavbu domu
1 / 65
ASB Logo ASB Logo