Spájanie drevených prvkov krovu
Existuje niekoľko spôsobov spájania drevených prvkov krovu, ako napr. použitie klasických tesárskych spojov, príložiek, špeciálnych platní alebo kovových uholníkov. Spôsob spájania jednotlivých prvkov závisí od výrobnej a montážnej technológie, veľkosti zaťaženia konštrukcie i jednotlivých spojov.
Typy drevených krovov
Podľa nosného systému možno krovové konštrukcie rozdeliť na:
- väznicové sústavy, ktorých základným nosným prvkom je väznica uložená na nosnej stene – pomúrnici – alebo podopretá stĺpikmi. V smere spádu strechy sú na väzniciach položené krokvy a podľa typu strešnej krytiny možno konštrukciu doplniť aj latovaním alebo debnením. Na zabezpečenie priestorovej tuhosti treba sústavu doplniť v priečnom smere klieštinami a v pozdĺžnom zavetrovacími pásikmi. Pri rozponoch väčších ako 8 m sa konštrukcia odľahčí vešadlami alebo vzperadlami, poprípade sa väzný trám podoprie stĺpikom;
- hambálkové sústavy – skladajú sa z krokvy a horizontálnej výstuže – hambálok, ktoré vytvárajú trojuholník. Priestorová tuhosť v pozdĺžnom smere sa zabezpečí rôznymi vystužovacími prvkami v rovine strešného plášťa;
- väzníkové sústavy – tvoria priečne uložené priehradové alebo plnostenné väzníky, ktoré môžu byť klincované alebo lepené. Na zabezpečenie priestorovej tuhosti sa v pozdĺžnom smere použijú ondrejské kríže;
- rámové sústavy – vznikajú doplnením väzníkov stojkami, ktoré sa ukotvia do základov. Aj rámovú sústavu možno rozdeliť tak isto ako väzníkovú.
![]() |
![]() |
| Spájanie drevených prvkov je zvlášť náročné pri priestorových konštrukciách | Svorníky nájdu uplatnenie aj pri priznaných konštrukciách |
Klasické tesárske spoje
Pomocou sústavy tesárskych spojov, ktoré prešli určitým vývojom, možno spájať prvky aj bez použitia kovových spojovacích prostriedkov. Ide napr. o spájanie krokiev vo vrchole krovu pomocou preplátania alebo o spájanie krokiev s väznicami pomocou osedlania. V súčasnosti sa tieto spoje vyrábajú v rôznych variantoch, najmä v kombinácii s použitím svorníkov, klincov, prípadne oceľových uholníkov.
Nevýhody tesárskych spojov:
- prácna výroba (možno eliminovať použitím CNC automatov, ktorých cena je však vysoká),
- pri vytváraní osedlaní, dlabov, preplátaní dochádza v miestach s najväčším zaťažením k oslabeniu prierezu dreveného prvku. V porovnaní s inými spôsobmi spájania si tieto konštrukcie vyžadujú masívnejšie prvky s väčším prierezom.
Výhody tesárskych spojov:
- sú dlhodobo odskúšané,
- pri presnom a správnom vyhotovení sú estetické.
Tieto spoje možno používať najmä v konštrukciách, ktoré ostávajú priznané. V masívnych konštrukciách v exteriéri sa pri tesárskych spojoch nemusia používať kovové spájacie prostriedky, čo eliminuje vznik korózie a neestetických čiernych fľakov na styku dreva a kovu. V súčasnosti sa však používajú aj spojovacie prostriedky so stálou povrchovou úpravou, pri ktorých dochádza k minimálnej korózii na povrchu dreva.
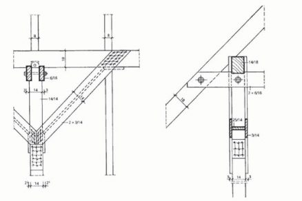
Klincované a svorníkové spoje
Tieto spoje sa používajú pri spájaní rôznobežných prvkov, kde jeden z prvkov je jednoduchého a druhý zloženého prierezu, napr. pri pripájaní klieštin ku krokve alebo k vešadlu. Podobným spôsobom možno vytvoriť aj úsporné klincované krovy pre objekt s obytných i neobytným podkrovím. Tento spôsob je vhodný, najmä ak treba spolu s konštrukciou krovu vytvoriť aj nosnú konštrukciu stropu. Pri vytváraní týchto spojov treba dodržať niekoľko zásad:
- pri vŕtaní otvorov pre svorník použiť rovnaký priemer vrtáka, ako je priemer svorníka,
- v nosnom svorníkovom spoji použiť minimálne dva svorníky,
- pre klince s priemerom d > 5,6 mm predvŕtať otvor s priemerom 0,85 × d do polovice dĺžky klinca,
- pri spájaní prvkov väčších hrúbok doplniť klincový spoj svorníkmi.
![]() |
![]() |
| Spájanie krokiev vo vrchole – kombinácia preplátovanie + klincovanie | Spájanie krokiev s klieštinami – klincovaný spoj so svorníkom |
Spoje pomocou klincovaných príložiek
Prvky krovu s rovnakou hrúbkou, ktoré ležia v jednej rovine, možno spájať aj klincovaním pomocou príložiek. Týmto spôsobom sa dajú vyhotoviť nosné spoje bez oslabovania jednotlivých prvkov a vytvoriť tak podobné úsporné krovy ako v predchádzajúcom prípade.
Využívajú sa najmä pri spájaní hambálkových krovov, ale takisto ich možno použiť aj pri riešení komplikovaných detailov väznicovej sústavy, napr. stĺp – väznica – pásik.
Klincované príložky môžu byť z rôznych materiálov, napr. z drevených dosiek, preglejok, OSB dosiek alebo z oceľových dierovaných plechov. V takýchto spojoch možno použiť aj klince so špeciálnou úpravou proti vytiahnutiu, napr. drážkové (hrebienkové) alebo s krúteným driekom.
Gang-nail alebo oceľové platne s prelisovanými hrotmi
V súčasnosti sa krovy čoraz častejšie vytvárajú pomocou tzv. gang-nail platní. Ide o kovové platničky s prelisovanými tŕňmi, ktoré sa zalisujú do dreva.
Táto technológia sa používa najmä na vytváranie úsporných priehradových nosníkov, ale možno ju uplatniť aj pri spájaní krovových väzieb v dielni. Najčastejšie sa týmto spôsobom riešia nosné sústavy plytkých striech s neobytným podkrovím.
Ostatné spoje
Z ostatných spojovacích prostriedkov sa najčastejšie používajú skrutky do dreva a kovové uholníky. Na našom trhu je niekoľko firiem, ktoré ponúkajú kovové spojovacie prvky rôznych tvarov a s rozličným využitím, ako napr. kovania na spájanie I-nosníkov, guľatiny a konštrukcií, ktoré sú zakryté, alebo kovania, ktoré sú po montáži prvku neviditeľné. Tieto firmy dodávajú ku kovaniu i vlastné klince, skrutky do dreva a svorníky a uvádzajú pri nich údaje o únosnosti pri rôznych spôsoboch zaťaženia.
Pri spájaní dreva sa používajú aj oceľové záchytky, tzv. Bulldog záchytky, pomocou ktorých možno zvýšiť nosnosť svorníkových spojov bez toho, aby dochádzalo k oslabeniu prierezu nosného prvku.
Text: Ing. Katerina Novosseletz, Ing. Milan Šulek
Foto a obrázky: autori
Katerina Novosseletz je doktorandkou na Drevárskej fakulte na Katedre nábytku a drevárskych výrobkov na oddelení drevených stavebných konštrukcií. Vo svojej práci sa venuje možnostiam spevňovania drevených nosníkov pomocou uhlíkových lamiel.
Milan Šulek je doktorandom na Katedre nábytku a drevárskych výrobkov na oddelení drevených stavebných konštrukcií. Zaoberá sa možnosťami využitia netradičných materiálov v stavebných konštrukciách na báze dreva pri zachovaní náročných energetických požiadaviek.















