Späť na článok
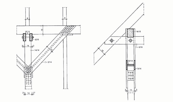
Spájanie drevených prvkov krovu
7 / 9