Malý rodinný domček s lávkou
Nerovný terén vo výške 920 m n. m. môže byť problémom pri riešení výstavby chaty či rodinného domu. V Krušných horách nie je o podobné pozemky núdza, horšie je vytvoriť projekt, ktorý by negatíva zvažujúceho sa terénu vyvážil, prípadne premenil na výhodu. Zaujímavý projekt menšieho rodinného domu či chaty na nevďačnom pozemku vytvorilo architektonické štúdio majo architekti.
Do interiéru cez lávku
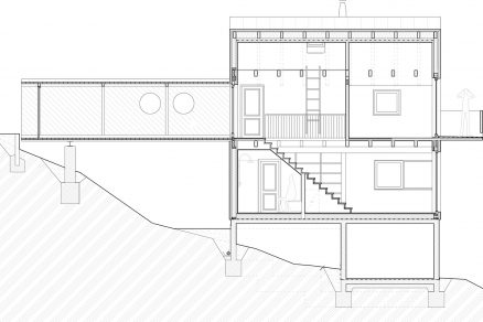
Rodinný dom či chata v Krušnohorí stojí uprostred zvažujúceho sa pozemku s výhľadom na český Klinovec a nemecký Fichtlberg, v mieste, kde sa prudký svah zmierňuje a vytvára terasu. Dom je osadený až na hrane tejto terasy, a tak poskytuje nerušený výhľad z okien na neďaleký Klinovec.
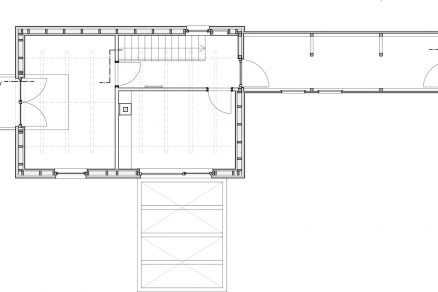
Pre relatívne strmý spád pozemku pri ceste je vstup do domu riešený inak, ako je bežné, ale veľmi prakticky – krytou lávkou s okrúhlymi oknami. Tá spája cestu pri dome s interiérom na úrovni druhého podlažia rodinného domu, slúži ako vstupná chodba a tiež na uskladnenie lyží. Okrem praktickosti lávka plní i ďalšiu funkciu – v tejto lokalite sú totiž vstupné mostíky rozšíreným tradičným i estetickým prvkom.
Drevostavba na betóne
Chata je materiálovo riešená ako drevostavba stojaca na sokli z pohľadového betónu. Nezvyčajne je riešený aj prestup svetla do betónovej pivnice – prostredníctvom do betónu zaliatych sklených tyčí. Elegantná i praktická fasáda domu je riešená obkladom z na pásy narezaných cementotrieskových Cetris dosiek.
Najkrajší výhľad z obývacieho priestoru
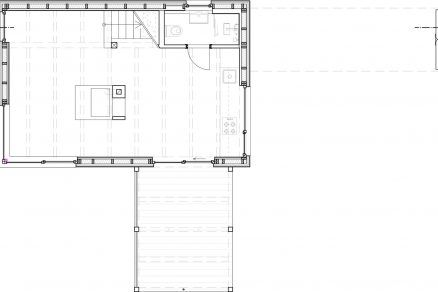
Po lávke prejdete priamo na druhé podlažie domu, kde sa nachádzajú dve miestnosti, jedna s balkónom. Prvé podlažie ponúka otvorený spoločenský priestor, ktorého súčasťou je kuchynský a jedálenský kút, nachádza sa tu aj toaleta s kúpeľňou.
Z otvoreného obývacieho priestoru, ktorý je presvetlený z troch svetových strán, je možné vyjsť cez drevenú pergolu na záhradu.
Sedlová strecha s kolmou orientáciou k svahu
„Hrebeň sedlovej strechy je orientovaný kolmo k svahu – toto riešenie sme zvolili s ohľadom na zdôraznenú požiadavku dobrého výhľadu, hoci sa pôvodne uvažovalo o rovnobežnej orientácii,“ vysvetľuje Ing. arch. Štěpán Jablonský.
Rovnobežná orientácia sa pôvodne zvažovala z dôvodu zaužívaných architektonických zvyklostí v okolí, avšak v súčasnosti je už v lokalite mnoho stavieb s kolmo orientovanými hrebeňmi striech, teda nedochádza k žiadnemu rušivému vplyvu.
Na úrovni cesty pri dome sa nachádza jedno pozdĺžne parkovacie miesto. Na pozemku sa nachádzala vyrastená zeleň, ktorá bola väčšinou aj zachovaná a počas stavby chránená.
Dom s lávkou v kocke:
Architekti: majo architekti
Lokalizácia: Loučná, Krušné Hory
Celková úžitková plocha: 66,7 m2
Zastavaná plocha RD: 42,4 m2
Zastavaná plocha lávky: 16,0 m2
Obstavaný priestor RD: ~320 m3
Obstavaný priestor lávky: ~33 m3
Výška hrebeňa strechy nad komunikáciou 4,5 m
Rok realizácie: 2014
Sabína Zavarská
Zdroj a foto: majo architekti




















