Späť na článok
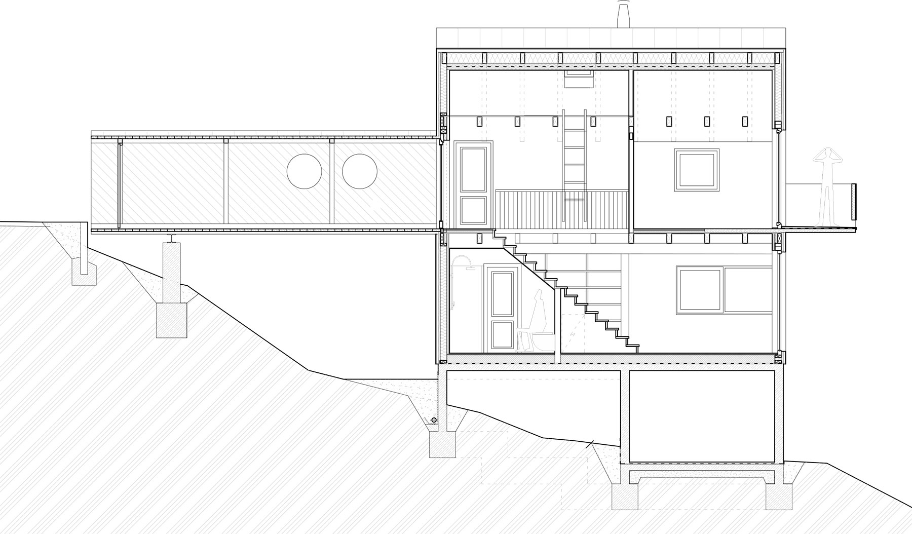
Malý rodinný domček s lávkou
3 / 24
rez