Dom a záhrada uprostred Tokia
Autorom domu s vertikálnou záhradnou fasádou nie je nik iný ako držiteľ Pritzkerovej ceny za architektúru Ryue Nishizawa. Jeho realizácie často disponujú priestorom, ktorý je ideálny na oddych a rozjímanie. Dom je pekný príklad toho, ako sa dá zahusťovať urbánna štruktúra bez znižovania množstva zelene.
Dojem nejasnej hranice medzi interiérom a exteriérom vytvára tenká vrstva zeminy. Zeleň je súčasťou zariadenia domu a betónové mesto sa stáva len zadnou kulisou.
Betónová konštrukcia postavená na troch nosných stĺpoch (a zopár útržkoch obvodových stien) umožnila, aby fasádu tvorili len vysoké okná s nenápadnými rámami.
|
|
Nábytkové vybavenie domu je minimálne, spĺňa len základné požiadavky na bývanie. Svojim zariadením je dom preto primeranou voľbou pre tých, ktorí sa namiesto vecí radi obklopujú prírodou.
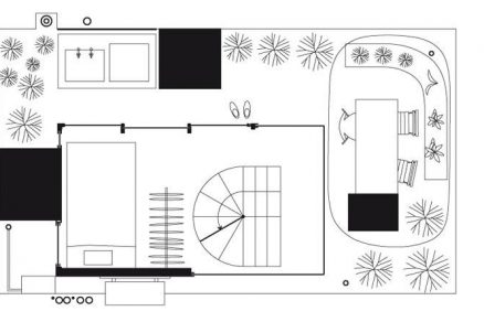
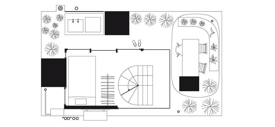
Vstupné podlažie tvorí obývačka a kuchyňa, ktoré sú hlavnými pobytovými miestnosťami počas väčšiny dňa. Zasklenie je tu čiastočne zakryté pred pohľadom z ulice krátkou stenou a zeleňou.
Parcela má pravidelný tvar, dom si drží od susedných objektov minimálny odstup. Steny sú okrem transparentných okien definované aj závesmi, lavicami a kvetináčmi. Tie taktiež oddeľujú jednotlivé miestnosti.
Točité schodisko spája všetky podlažia – prízemie, dve spálne, kúpeľňu na treťom podlaží. Strechu si majitelia naplánovali ako miesto na skladovanie záhradného náradia.
|
|
Úzka prieluka v susedstve dvoch viacpodlažných budov nemá na prvý pohľad veľký potenciál. Menší počet podlaží však objekt kompenzuje iným pozitívom – jeho vertikálnou záhradnou fasádou.
Dom má len tri nadzemné podlažia, čo je málo v porovnaní s klasickou podlažnosťou v tejto štvrti. Vyšší počet podlaží v takomto úzkom dome by už totiž znamenal nevyužiteľnú dispozíciu pre každodenný život. Vegetácia sa tiahne naprieč celým domom až na strechu.
Zdroj: inhabitat.com
TEXT: Katarína Vankušová
FOTO: Ryue Nishizawa, Iwan Baan























