Átriový dom ako inšpirácia na riešenie súkromia
Jedným z najlepších riešení, ako si uchrániť súkromie v exteriéri aj na menšom pozemku, je dom, uprostred ktorého je átrium. Štvorcový dom švédskeho architektonického štúdia Tham & Videgård Arkitekter je príkladom átriového domu, ktorý slúži ako prázdninové bývanie pre trojgeneračnú rodinu.
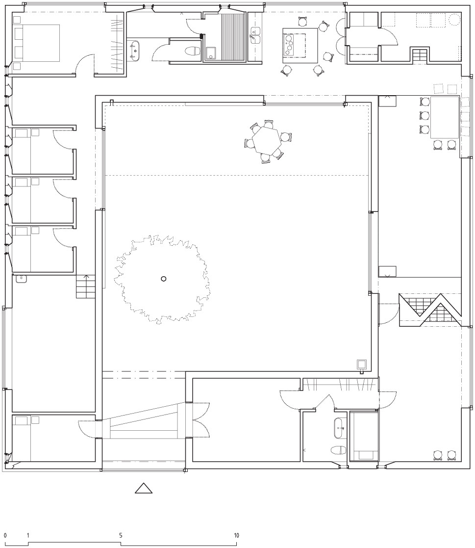
Štvorec vo štvorci
Dom leží na miernom svahu bývalého pobrežia, ktoré bolo pred tisícmi rokov na ostrove Gotland v Baltskom mori. Uprostred kvádra jednopodlažného objektu, zapadajúceho do prírodného prostredia, je vyrezaný štvorec átria – vonkajšieho priestoru, ktorý rodina využíva ako terasu, dvor, vonkajšiu jedáleň či miesto na relax zároveň. Tento otvorený priestor je z každej strany chránený jedným ramenom domu a dom zároveň rozčleňuje na niekoľko funkčných celkov.
Okolie zostalo nedotknuté
Celý dom nesie charakter prístrešia v otvorenej prírodnej krajine. Ostatný vonkajší priestor okolo neho zostáva neporušený, bez zásahu – ako prirodzená lúka, na ktorej sa môžu pásť ovce. Jednotlivé ramená prísne geometrického domu sú relatívne úzke, ale veľké zasklenia mu dodávajú dojem vzdušnosti i potrebné prirodzené svetlo, ktoré do interiéru prúdi aj vďaka átriu.
Priestory majú rôzne výšky
Veľmi zaujímavý efekt je dosiahnutý tým, že podlaha sa prispôsobuje terénu, a teda nie je v celom dome rovnaká, ale klesá a stúpa v súlade s terénom. Keďže strecha je všade v rovnakej výške, výška jednotlivých častí domu po strop je tiež rozdielna. V priestoroch s klesajúcim terénom je väčšia a naopak. Strop je drevený, čo zaujímavo kontrastuje s betónovými stenami.
Jednoduchý vzhľad a veľké okná
Vnútro domu okolo átria je riešené ako kontinuálny priestor, môžete sa teda v interiéri pohybovať okolo celého átria. Sú sem vsadené menšie miestnosti, ktoré zabezpečujú obyvateľom súkromie. Výber použitých materiálov je inšpirovaný domácou ľudovou architektúrou.
Jednoduchý vzhľad domu dopĺňajú detaily vyrobené z oxidovaného zinku, dubové dvere a okná ošetrené dechtovým olejom. Veľké sklené posuvné okná sú montované na povrch exteriérových stien. Aj interiérové dvere sú namontované rovnakým spôsobom, ktorý umožňuje nerušený vzhľad stien.
Minimalizmus i v interiéri
Dispozičné riešenie minimalistického interiéru je prehľadné a logické. V nočnom krídle nájdete tri samostatné spálne a jednu väčšiu rodičovskú, odtiaľ pokračuje druhé rameno štvorca s hygienickým zázemím, spoločenskými miestnosťami, tretie s jedálňou a kuchyňou (nechýba ani kozub) a štvrté so samotným vstupom do domu. Všetko je však zariadené veľmi úsporne – minimalisticky. Pôsobivými prvkami sú vstavané „hniezda“, postele, ktoré sú v drevenom boxe predstavujúcom vstavaný nábytok.
Átriový dom v kocke
Architektonické štúdio: Tham & Videgård Arkitekter
Tím: Bolle Tham (hlavný architekt), Tove Belfrage, Martin Videgård (spolupracovníci)
Vznik projektu: 2002 až 2004
Realizácia: 2006 až 2010
Lokalita: ostrov Gotland, Baltské more
Špeciálne ocenenie: 1. cena na ECOLA Awards 2012 v Nemecku
Text: Sabína Zavarská
Foto: Åke E: son Lindman


















