Späť na článok
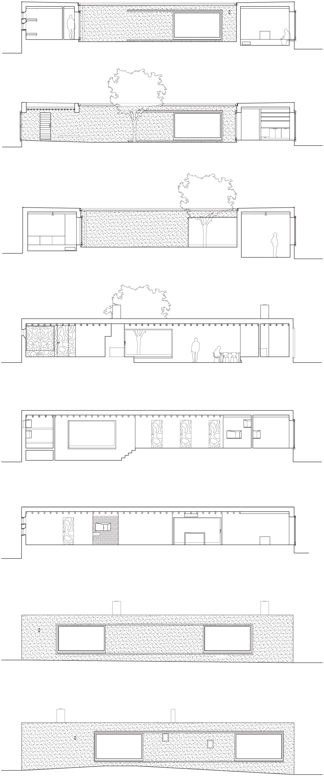
Átriový dom ako inšpirácia na riešenie súkromia
2 / 13
2 Atrium house facades sections Tham Videgcrd