Centrála Gumex Slovakia
Z blízkych ciest sa nedá nevidieť architektonickú novotu. Poloha pozemku, na ktorom stojí nové firemné sídlo, bola určujúca marketingovo i architektonicky. Kto cestuje po R1, ten si na nitrianskom obchvate všimne na slovenské pomery dosť prekvapivý objekt. Za dňa zaujme najmä elegantnou geometricky formovanou figúrou a žltými akcentmi akoby vyplavenými z hĺbky interiéru na zasklenú časť fasády.
Večer a v noci, keď sa v útrobách budovy podobnej kryhe alebo vesmírnej lodi zasvieti, jej „prova“ žiari do tmy. Budí tak v okolo cestujúcich či idúcich zvedavosť. Zainteresovaní vedia, že za obrovskou zasklenou stenou sídli administratíva rodinnej firmy. To, že sa firme darí, vidieť aj na rozhodnutí majiteľov stavať dobrú architektúru nielen v zmysle funkcie, ale aj reprezentácie ducha firmy. Aby boli domáci čo najbližšie k svojim zákazníkom, architekti pre nich umiestnili administratívno-predajnú časť čo najbližšie k Cabajskej ceste, odkiaľ stačí odbočiť na parkovisko pred budovou.
Architektonicky a pocitovo dominuje hale veľká zasklená stena s výhľadom na R1.
Preliačením severnej fasády do hĺbky objektu vznikol veľkorysý presah strechy ako ochrana vstupu pre zákazníkov.
Geometria v dobrom svetle
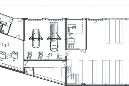
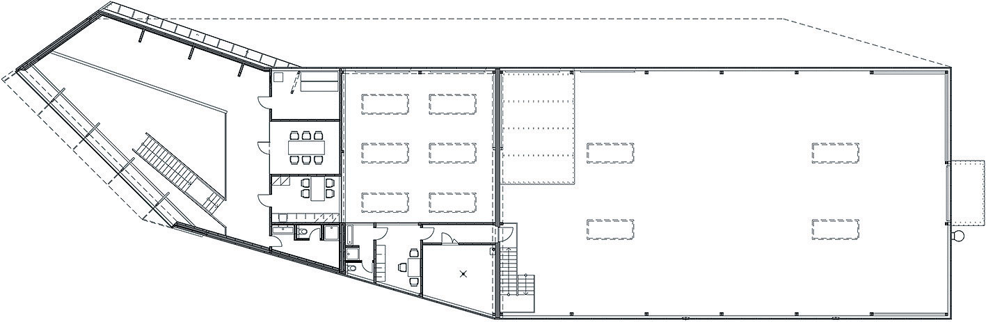
Pozdĺžna os oceľového skeletu budovy Gumex Slovakia plynie rovnobežne s R1. Originálny kompaktný tvar objektu vrátane netypického členenia fasády pôsobí modernisticky, sošne, má svoju charizmu. Tá skôr vyplynula z hľadania väzieb a funkčnosti ako zo snahy šokovať vzhľadom objektu. Aby sa všetky úkony a pohyb vo firme ocitli pod jednou strechou, architekti navrhli ucelenú stavbu, pri ktorej prihliadali aj na dopravnú prevádzku areálu a nevyhnutné požiarne odstupy od iných stavieb. Zasklené dvere najviac presvetlenej časti objektu jednoznačne vedú prichádzajúcich správnym smerom do odbytovej haly. Od vstupu sa prechádza príjemným priestranným zádverím do reprezentačnej a najmä prijímacej časti odbytovej haly. Pôsobí výtvarne čisto a pritom dynamicky. Architekti ju nechali vystavať do výšky dvoch podlaží. Je miestom prvého kontaktu s klientmi.
Návštevy ohromí žiarivý priestor sýtený denným svetlom. Žltá, odtiene sivej, kov, sklo, príjemná a veľkorysá harmónia interiéru. Tomu vládne po celej svetlej výške veľká zasklená stena s panoramatickým výhľadom na západ. Jej plocha sa sklápa hornou stranou smerom k frekventovanej R1, ktorá je súčasťou južného obchvatu Nitry. Dobre zvukovo izolovaná stena chráni interiér pred hlukom. Obraz ruchu rýchlostnej komunikácie zmierňuje pohľad na brezy a prírodnú scenériu. Blízkosť R1 však pripomína podstatu obchodnej činnosti firmy. Priestorom sa dvíha opticky ľahké oceľové schodiskové rameno. Vedie na galériu, kde sú v rade vedľa seba umiestnené technická miestnosť, „rokovačka“, kuchyňa a kúpeľňa s WC. Galéria je pripravená na možnosť rozširovania firmy. Na prízemí haly, pod vysunutou galériou, sa usilovne pracuje. Sem, za posuvné zasklené priečky, umiestnili architekti tri menšie kancelárie s dostatkom svetla a v rovnakom farebnom, materiálovom a pocitovom ladení, aké Martin Paulíny a Braňo Hovorka prisúdili samotnej hale. Kultivované hygienické zázemie pre zákazníkov a aj domácich má svoje miesto v blízkosti vstupu do budovy.
Interiérmi autori dopovedali myšlienku, ktorá bola na začiatku architektonického projektu.
V architektonicky a pocitovo ucelenom administratívno-obchodnom trakte sa zariaďovalo s myšlienkou na hlavné aktivity firmy. Čalúnené lavice pre klientov, stôl na komunikáciu s klientelou, rozmiestnenie svietidiel, decentný vzor na ľahkých sklenených priečkach, premeny svetla a tieňa na podlahe pripomínajú dynamiku ciest, naznačujú dezén pneumatík. Pri pozornom vnímaní geometrickej architektúry budovy možno prečítať tento odkaz na viacerých miestach. Snáď najviac je viditeľný pri pohľade od vstupnej brány do areálu spoločnosti. Tektonika budovy niekde ustupuje, inde vystupuje; všetko premyslene. So zámerom uľahčiť a spríjemniť vjazd do pneuservisu vznikol na severnej fasáde architektonicky nápadný a zreteľný prístrešok. Napriek všetkej funkčnosti, alebo možno práve kvôli nej, tu vznikla dynamická architektonická forma, ktorá môže asociovať spomínaný dezén pneumatiky alebo veľkú „jednotku“.
Súvislosti a dispozície
Klienti už z haly vidia cez zasklenú priečku dianie v pneuservise. Doň možno prejsť chodbou, ktorá sa tiahne od haly až ku skladu. Do časti chodby si domáci umiestnili baliareň internetového obchodu. Nad chodbou vzniklo zázemie pre zamestnancov pneuservisu. Vedie tam schodisko priamo zo skladu. Skladové zásoby sa dopĺňajú cez obslužnú rampu so vstupom na východnej fasáde. Tá je na opačnom konci ako klientska zóna. Čierno-sivo-striebristá farebnosť a priame línie objektu sa premietajú do vzhľadu interiéru pneuservisu i skladu. Vjazd do servisných boxov pneuservisu zakomponovali architekti do jedného celku so vstupnými vrátami na výdaj pneumatík. Čierny pruh fasády, ktorý prepája tieto vstupy, nadväzuje v jednej línii na vchod do odbytovej haly. Hoci sú skladová hala a priestor pneuservisu jednopodlažné, vyrástli do rovnakej dvojpodlažnej výšky ako odbytová hala. Osem metrov vysokú budovu, ktorá v sebe prepojila administratívno-obchodnú časť s pneuservisom a skladom, opláštili striebornými metalickými sendvičovými panelmi so zvislým rastrovaním. Plášť dokresľuje celistvý charakter objektu, viac stavbu pripodobuje estetike vesmírnych plavidiel.
Pôdorys 1. podzemného podlažia
Pôdorys 1. nadzemného podlažia
Južný pohľad
Centrála firmy GUMEX Slovakia
Miesto: Cabajská cesta 25, Nitra
Investor: GUMEX Slovakia, Nitra
Autori: paulíny hovorka architekti/Braňo Hovorka, Martin Paulíny
Projekt: 2012 – 2013
Realizácia: 2014 – 2015
Plocha pozemku: 8 516 m2
Zastavaná plocha: 888 m2
Úžitková plocha: 900 m2
Obstavaný priestor: 7 640 m3
Stavebné náklady: 800 000 € bez DPH
TEXT: Marína Ungerová, Foto: Braňo Hovorka
Článok bol uverejnený v časopise ASB.



















