Späť na článok Centrála Gumex Slovakia
8 / 12
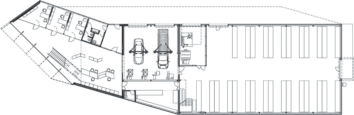
GUMEX X 02 podorys 1np