Pri rekonštrukcii materskej školy využili obnoviteľné zdroje
Od školy hrou cez vzdelávanie až po stretávanie sa generácií. Práve symbol stretávania ľudí sa objavil aj v architektonickom koncepte materskej a základnej školy v Ostopoviciach pri Brne. Prostredníctvom organického prvku – kruhov – prechádza tento symbol rastrom skeletu a pokračuje do záhrady a do strešnej záhrady.
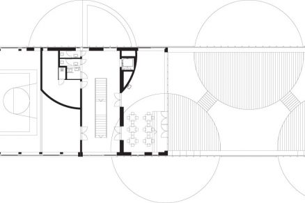
Kruhy sú najlepšie viditeľné pri priemete do pôdorysu. Definujú spoločné priestory vo vnútri, ale aj mimo budovy. Vytvárajú novú svojbytnú priestorovú organizáciu celého objektu a záhrady. „Tento koncept je výrazným stavebným riešením, keď poschodiami prechádza päť valcov, ale aj farebnosťou fasád, ktorá pokračuje v interiéri farebnými stenami a podlahami,“ hovorí autorka návrhu Ing. arch. Eva Eichlerová. „Priestor je neprehliadnuteľný, doslova sa vlní a preteká medzi valcovými výsekmi, je hravý a blízky svojim užívateľom.“ Na prízemí je materská škola, ktorá využíva priľahlú exteriérovú záhradu. Z herní je východ na terasy a tie sa tak voľne prelínajú z interiéru do exteriéru. Na prvom poschodí je základná škola a na druhom je učebňa pre deti v školskej družine s východom na terasu. Terasa má podobu strešnej záhrady a slúži ako vonkajšia trieda.
Rekonštrukcia v dvoch etapách
Projekt rekonštrukcie a dostavby materskej a základnej školy iniciovalo vedenie obce a na základe výberového konania oslovilo niekoľko architektonických kancelárií. Školské zariadenia boli v troch navzájom neprepojených budovách, ale z energetického auditu vyplynulo, že sú nevyhovujúce. Zrekonštruovať sa však dala iba hlavná budova – železobetónový skelet zo 70. rokov minulého storočia. Zostávajúce budovy čaká postupná demolácia.
„Aj tento objekt mal však zreteľné stavebné poruchy – popraskané murivo, veľké straty tepla a nevyhovoval ani dispozične,“ približuje Eva Eichlerová. „Pôvodne mala byť budova v pasívnom štandarde, ale na školské budovy nebola vtedy štátna podpora. Obec teda využila aspoň čiastočnú dotáciu na zateplenie a výmenu okien, celkovú rekonštrukciu a dostavbu však zväčša financovala z vlastných zdrojov. Aj preto sa proces rozdelil na dve etapy. V rokoch 2010 – 2011 sa realizovala prvá etapa a minulý rok získala škola dotáciu na realizáciu vonkajšej strešnej učebne na zelenej streche. V dohľadnom čase by sa mohlo zrealizovať rozšírenie materskej školy, čím by sa začala druhá etapa výstavby.“
Materiály šetriace energiou
Výber materiálov ovplyvnili nároky na nízkoenergetické riešenie budovy, a preto v maximálnej možnej miere pochádzali z obnoviteľných zdrojov. Zároveň museli spĺňať požiadavky statického a konštrukčného riešenia.
„Pôvodné výmurovky skeletu boli veľmi tenké, bez tepelnej izolácie, dom mal veľké tepelné straty a tepelné mosty. Materiál Ytong spĺňal všetky požiadavky – je ľahký, presný, má výborné izolačné vlastnosti a práce na stavbe prebiehali veľmi rýchlo a jednoducho,“ hovorí Eva Eichlerová. „Preto sme pri zvislom obvodovom murive použili výmurovku z pórobetónových tvárnic Ytong od spoločnosti Xella CZ, ktoré majú hrúbku 250 mm a je na nich aplikovaná tepelná izolácia s hrúbkou 200 mm.“
Na zateplenie bola použitá tepelná izolácia z nehorľavého polystyrénu, pričom zatepľovacia vrstva sa na časti fasády omietla a na časť sa aplikoval predsadený nehorľavý obklad Silbonit s prevetrávanou vzduchovou medzerou. Vykurovanie a ohrev vody zabezpečujú tepelné čerpadlá, ktoré ťahajú vodu z hlbinných vrtov. Na splachovanie toaliet sa používa dažďová voda. „Potešilo nás, že energetický audit po prvom roku prevádzky zrekonštruovanej budovy konštatoval, že reálna spotreba energie na vykurovanie a ohrev vody je oveľa menšia, než bolo projektované – reálne došlo k zníženiu spotreby o 86,4 %.“
Materská a základná škola v Ostopoviciach je kultivovaným príkladom modernej rekonštrukcie a dostavby šetriacej materiálmi a využívajúcej obnoviteľné zdroje energie. Je zároveň adekvátnou odpoveďou na definovanie účelu verejnej budovy – hravou, sviežou a zodpovednou.
Materská a základná škola
Miesto: Ostopovice pri Brne
Autor návrhu: Ing. arch. Zdeněk Eichler
Ing. arch. Eva Eichlerová
EA architekti, s. r. o.
Spolupráca: Ing. arch. Věra Petrovská
Plocha pozemku: 3 573,30 m2
Zastavaná plocha: 1 042,60 m2
Úžitková plocha: 2 013,80 m2
Obstavaný priestor: 9 856,10 m3
Konštrukčné riešenie:
Ing. Václav Přikryl, JP Statika, s. r. o.
Stavebné riešenie: Ing. Dan Lukašík
Vykurovanie: Ing. Jan Henzl, Terming, s.r.o.
Zdravotno-technická inštalácia:
Ing. Miriam Panicová
Požiarna ochrana budov:
Ing. Táňa Švecová, Ing. Jana Gálová
Projekt: 2008 – 2009
Realizácia: 2010 – 2011
text: Ľudovít Petránsky
foto: Karel Poneš, Aleš Ležatka
Článok bol uverejnený v časopise ASB.
















