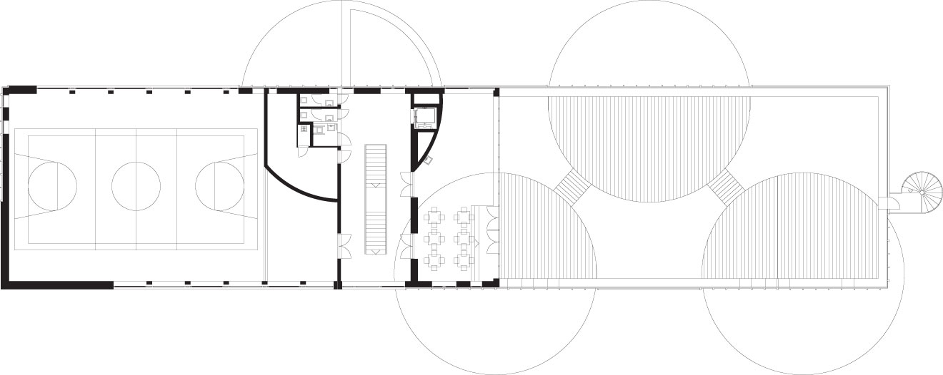
Späť na článok Pri rekonštrukcii materskej školy využili obnoviteľné zdroje
2 / 11
3
3
ASB Logo ASB Logo