Kino Mier v Nových Zámkoch získalo novú tvár
Miestne kino v Nových Zámkoch zmenilo svoj vzhľad. Obľúbená budova má po dlhých rokoch atraktívnejšiu podobu. Architektom z ateliéru IMA sa kultúrnu stavbu, symbolizujúcu svoju dobu, podarilo premeniť na moderný a vizuálne pútavý objekt. Značnou mierou sa o to pričinil vláknocementový fasádny obklad, ktorý sa použil na jej opláštenie.
Kino Mier patrí k najreprezentatívnejším stavbám mesta Nové Zámky a slúži ako spádové kino pre zhruba 30-kilometrovú oblasť. Patrí dlhodobo k najnavštevovanejším kamenným kinám na Slovensku a má dlhoročnú históriu. Počas svojej existencie prešlo niekoľkými zmenami, výrazný kvalitatívny posun znamenala najmä digitalizácia kina a použitie kvalitnej techniky i najmodernejších zvukových systémov. Aby kino udržalo krok s pokrokom, bolo nevyhnutné pristúpiť k jeho modernizácii. Architekti Marcel Mészáros a Ivana Thomková z ateliéru IMA sa nesnažili dať kinu novú tvár za každú cenu, ale chceli stavbe dodať prvok nových čias. „To najzaujímavejšie na projekte bolo pre nás hľadanie tej správnej miery, ako sa k stavbe, ktorá funguje desaťročia a dýcha minulým režimom, postaviť. Architektúra objektu kina bola v minulosti navrhnutá čitateľne a s pretrvávajúcim vkusom. Hlavnou myšlienkou našej práce bolo zachovanie nadčasového pôsobenia stavby a jej obohatenie o jemný odtlačok dnešnej doby,“ hovorí architektka Ivana Thomková.
Zníženie energetického zaťaženia
Po stavebno-technickej stránke bola stavba navrhnutá podľa súčasných požiadaviek zákona o energetickej hospodárnosti budov a technických noriem pre obnovované budovy. Revitalizáciou kina sa prispelo nielen k zníženiu energetického zaťaženia budovy, ale tiež ku skultúrneniu objektu z hľadiska estetiky. Bola navrhnutá odvetraná fasáda a okenné a dverné výplne sa vymenili za hliníkové s trojitým izolačným zasklením. Tepelnoizolačný materiál sa zvolil podľa miesta aplikácie. V častiach fasády, ktorá je v kontakte s terénom, bol navrhnutý extrudovaný polystyrén pre nenasiakavosť. Na ostatné plochy plášťa sa aplikovala tepelná izolácia na minerálnovláknitej báze. Navyše je tepelná izolácia chránená paropriepustnou fóliou. Podporná kovová konštrukcia, ktorá nesie fasádny obklad, je odsadená od obvodového plášťa pomocou špeciálnych podložiek Thermostop kvôli zníženiu tepelných prestupov v týchto miestach.
Nadčasovosť fasády
Aby sa zlepšili tepelnoizolačné vlastnosti obvodového plášťa budovy, bola na stavbe zrealizovaná odvetraná fasáda. Architekti pri obnove kina Mier hľadali k danému systému neumelo pôsobiaci, dôstojný a trvácny materiál. „Dôležitým kritériom výberu boli prírodná škála farieb a štruktúrovanosť obkladu, aby sme sa priblížili pôvodnej myšlienke stvárnenia obvodového plášťa. Preto sme zvolili niekoľko farebne a štruktúrou odlišných vláknocementových obkladových dosiek Equitone. Tie majú navyše do hĺbky homogénnu štruktúru, čo je vítaná vlastnosť pri drobných poškodeniach obkladu, ktoré sú tak viditeľné len minimálne,“ vymenúva dôvody výberu fasádneho obkladu I. Thomková. V prípade poškodenia možno fasádne panely rýchlo vymeniť za nové.
Architekti pri obnove kina zvolili k systému odvetranej fasády niekoľko farebne a štruktúrou odlišných vláknocementových obkladových dosiek Equitone.
Kombinácie obkladových dosiek
Hlavnou myšlienkou stavby boli a sú silné horizontály v priečeliach – tmavšie odlíšené pásy plávajúce nad parterom a ustúpený vodorovný pás parteru –, vsadené medzi prísne zvislo členené štíty. Vertikalita bola kedysi vytvorená kladením tvarovanej keramiky a posilnená vystupujúcimi pásmi, ktorých vzájomné vzdialenosti boli nepravidelné. Príbuzné pôsobenie sa architekti z ateliéru IMA snažili docieliť zvislo ukladaným obkladom Equitone [tectiva] v dvoch veľmi podobných svetlých odtieňoch, aby sa vyzdvihol jemný kontrast v ploche štítov.
Na hlavných plochách stavby boli použité dosky v dvoch príbuzných odtieňoch.
Vodorovné pásy nad parterom architekti podporili vrúbkovaným trojrozmerným obkladom Equitone [linea] v hnedosivej farbe, ktorého odtieň sa podľa polohy slnka v priebehu dňa mení. V každej časti dňa vďaka tomu získava fasádny materiál odlišný charakter. Horizontalita parteru je podčiarknutá čiernym obkladom Equitone [pictura], ktorého pridanou hodnotou je trvácna antigraffiti povrchová úprava.
Meniaci sa uhol dopadajúceho svetla dáva fasádnemu obkladu odlišný charakter.
Pôsobivé osvetlenie
Pôvodným zámerom mesta Nové Zámky bola rekonštrukcia kina Mier zameraná na zvýšenie energetickej efektívnosti stavby zateplením a jej vizuálne skultúrnenie. Nakoniec bol projekt obohatený aj o dynamické osvetlenie, ktoré prispelo k priblíženiu sa k dnešnému modernému návštevníkovi. „Pridaná hodnota stavby spočíva v decentnej dynamizácii najvýznamnejších plôch fasády programovateľným LED osvetlením. Variujúca farebnosť a typ osvetlenia vnášajú svieži vietor do nadčasového vzhľadu a zároveň ho obohacujú o funkciu navyše. Slúžia ako farebný pútač oznamujúci vopred a počas premietania žánrové zaradenie filmu,“ dopĺňa na záver I. Thomková. Mesto Nové Zámky plánuje v najbližšom čase aj revitalizáciu parčíka pred kinom a výmenu rozbitej dlažby okolo budovy.
Lineárny obklad umožnil začlenenie zvislých LED pásov dynamického osvetlenia fasády.
KINO MIER
Miesto: Námestie Gy. Széchényiho 9, Nové Zámky
Investor: mesto Nové Zámky
Architekt: architektonický ateliér IMA
Začiatok a koniec revitalizácie: 09/2017 – 01/2018
Úžitková plocha: 1 530 m2
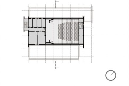
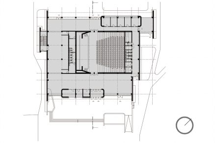
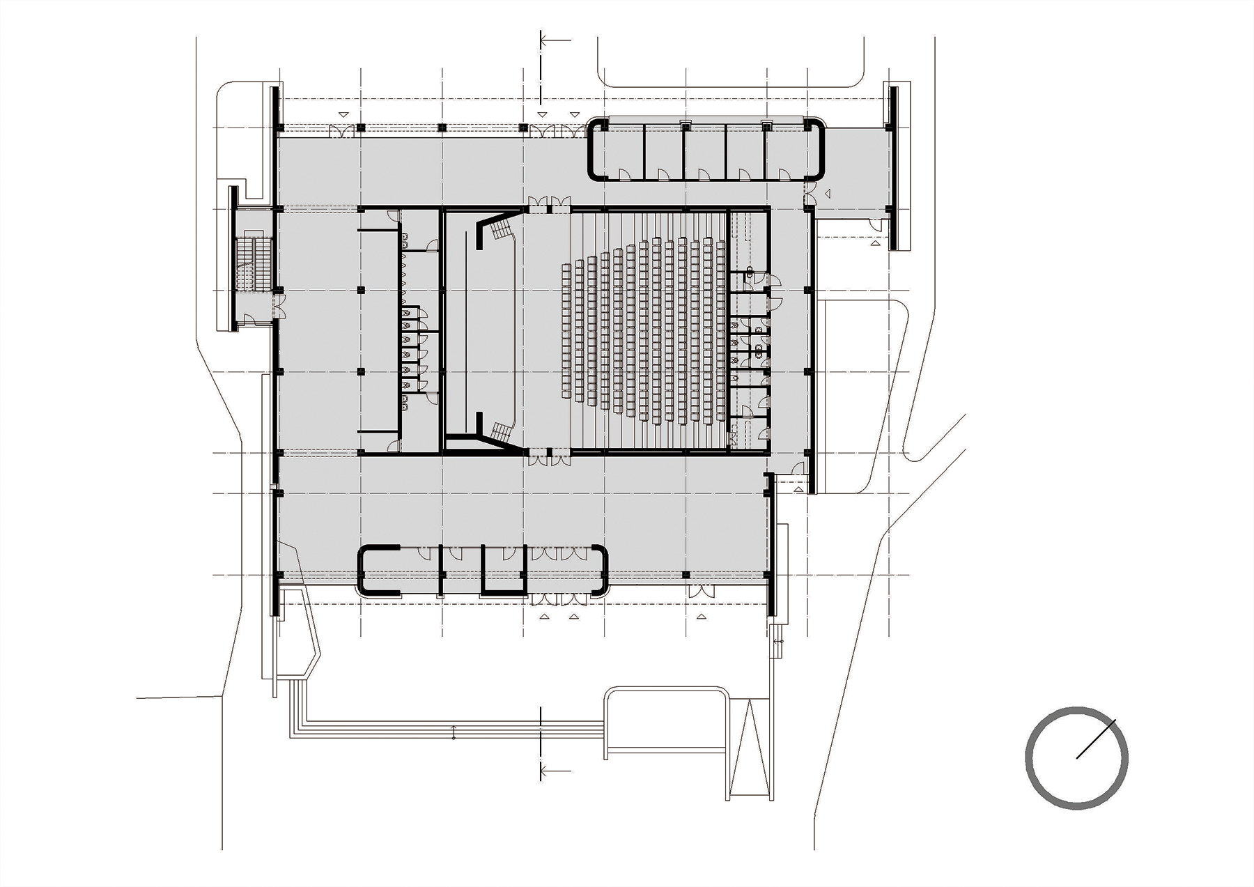
Pôdorys.
PODKLADY: EQUITONE
REDAKČNÁ ÚPRAVA: ĽUDOVÍT PETRÁNSKY
FOTO: MARTIN MATULA
Článok bol uverejnený v časopise ASB 5/2018.

















