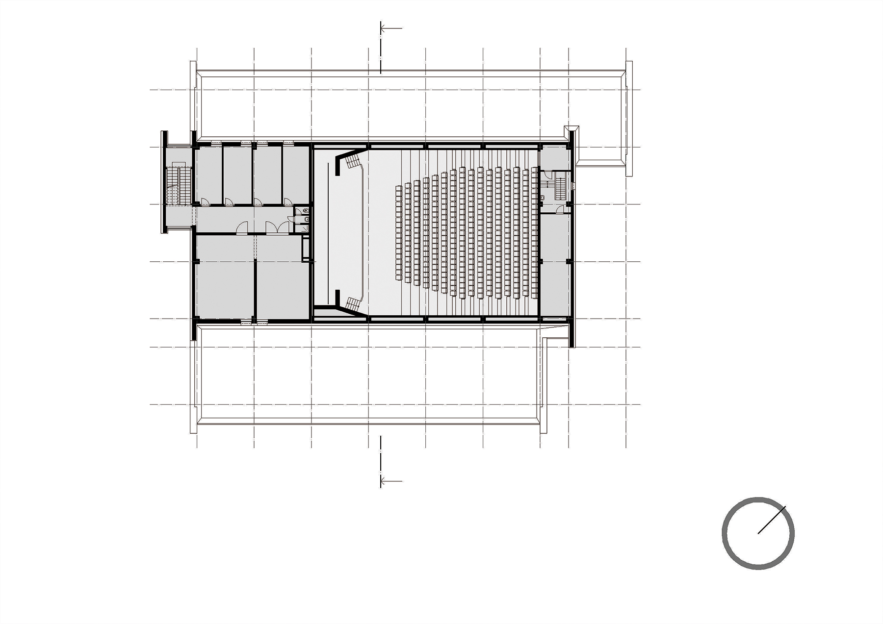
Späť na článok Kino Mier v Nových Zámkoch získalo novú tvár
7 / 9
ASB Logo ASB Logo