Konverzia verejnej práčovne
Architektonické štúdio MAIO z Barcelony kombinuje profesijné, akademické, výskumné aktivity a redakčnú činnosť. Prijímaním zákaziek súvisiacich so širšou prácou architekta, akou je výskum či príprava výstav, sa svojsky a odhodlane stavajú ku kríze v stavebníctve. Štúdio má na starosti vedenie časopisu Quaderns d’Arquitectura i Urbanisme, výuku na School of Architecture v Barcelone, stavbu prebiehajúcich projektov, ktoré zahŕňajú všetko od inštalácií až po obydlia. Ich projekty teda nie sú len o konštruovaní a výstavbe.
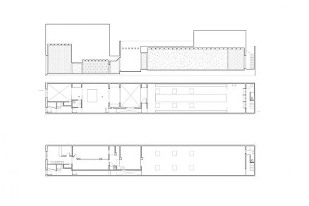
Architekti Anna Puigjaner a Guillermo López navrhli pre seba a ďalších 2 členov MAIO tímu štúdio, ktoré je zároveň pracoviskom i priestorom na expozície v rámci jednej budovy. Konverzia verejnej práčovne je čiastočne otvorená do exteriéru, napoly otvorená pre verejnosť a úplne otvorená akejkoľvek komunikácii s architektúrou a o architektúre. Pôvodná 40 metrov dlhá budova bývala jednoliatym objemom, s premenlivými úsekmi a nedostatočným osvetlením. Architektonická kancelária MAIO pretvorila tento priestor na otvorené štúdio pre profesionálov z rozličných polí architektúry a dizajnu.
Najcharakteristickejším miestom v budove je prostredné átrium, ktoré rozdeľuje 40 metrov pôvodného priestoru na 2 časti: výstavné priestory a kanceláriu. Átrium vzniklo najmä z dôvodu extrémne slabého presvetlenia vnútorných priestorov. Preto sa návrh zameral na otvorenie vnútorného dvora, doslova považovaného za vonkajšiu izbu, ktorou možno skvalitniť vnútorné presvetlenie. Typickú španielsku otvorenosť a komunikatívnosť symbolizujú 2 stoly, každý umiestnený v jednej z častí budovy. Tieto dva stoly sú ústrednými prvkami projektu a centrom aktivít, umožňujú vznik nečakaných interakcií medzi užívateľmi počas spolupráce. Presnejšie povedané, tieto stoly boli navrhnuté ako generátor komunity. Ich formálne usporiadanie reaguje na rozličné aktivity prebiehajúce v oboch úsekoch.

Nový vnútorný dvor vznikol ako exteriérová miestnosť, ktorá sa stala miestom rozvoja mnohých mimopracovných aktivít – napríklad barbeques alebo paellas. Všetko to však má opäť niečo spoločné s pojmom komunita.
Autor: MAIO (Guillermo López, Anna Puigjaner)
Lokalita: Bruniquerst, Barcelona
Realizácia: jún 2012
ZDROJ: http://www.maio-maio.com/
TEXT: Katarína Vankušová
FOTO: José Hevia, Isa Merino (details)















