Späť na článok Konverzia verejnej práčovne
5 / 10
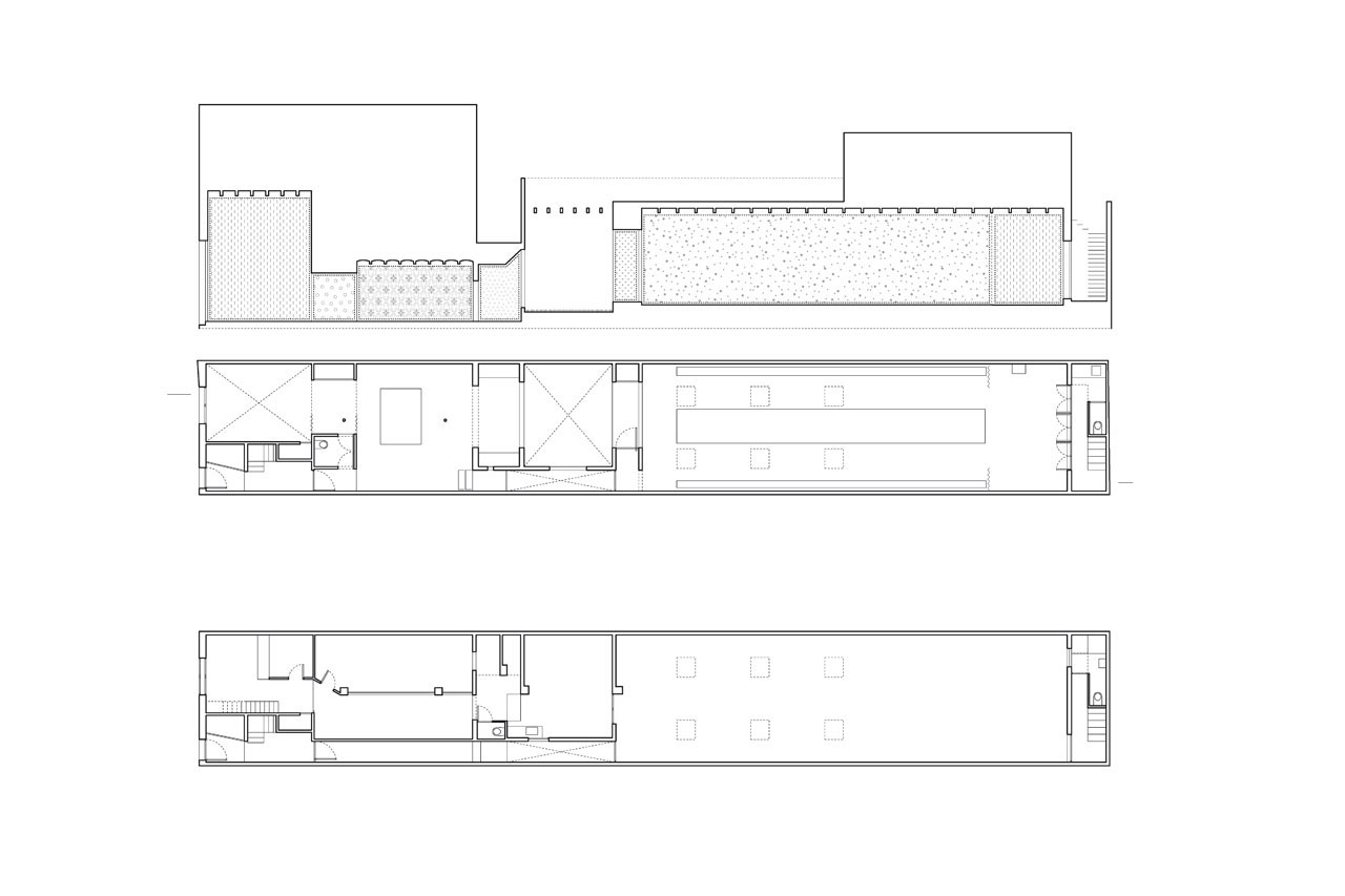
09 washing place