Penzión Chateau Rúbaň
Sklenená fasáda na penzióne v Chateau Rúbaň nás natoľko zaujala, že sme sa rozhodli ísť ju obhliadnuť osobne. A ako to už býva, návšteva nebola len o fasáde, ale najmä o celom areáli mladého vinárstva.
Dedinka Rúbaň leží neďaleko Nových Zámkov, v oblasti, kde pohľad smerom na horizont občas zavadí o mierne zvlnené vŕšky, hlavne, kam až oko dovidí, vidíte polia, malé dedinky a opäť polia. A samozrejme vinohrady. Priam bytostne cítite pokoj a pohodu, ktorá z tejto lokality plynie. Pochopíte, prečo môže byť dobrý nápad rozbehnúť vinárstvo práve tu.
Vzácny park
Areál vinárstva je situovaný na okraji obce. Je ľahko prístupný, vstupnú bránu jednoducho nemôžete minúť. Prekvapilo nás naozaj rozvoľnené rozloženie jednotlivých objektov a tiež prítomnosť krásneho prírodného parku. Ten počas našej zimnej návštevy len dával tušiť, akú pohodu poskytuje v lete či na jeseň, ale hrubé kmene vysokých stromov ohurujú bez ohľadu na ročné obdobie.
Park založila koncom 19. storočia rodina Steigerovcov a dodnes v ňom rastie 12 druhov vzácnych exotických drevín. Táto zelená oáza patrí dnes k vinárstvu a podnikavé vedenie firmy už plánuje zapojiť park do svojich gastronomicko-turistických aktivít.
Prepojenie súvislostí
Vízie investora do reálnej podoby postupne zhmotňuje architekt Zoltán Bartal zo štúdia Graphite z Komárna. Pôvodne bol areál zastavaný rôznymi hospodárskymi budovami. Pod zemou bola dokonca vybudovaná rozsiahla betónová infraštruktúra, ktorú bolo treba kvôli novej výstavbe takmer celú vybúrať.
V tejto súvislosti je pochopiteľná aj stratégia zachovať z nadzemných stavieb to, čo malo zmysel a dalo sa aj reálne v budúcnosti vo firme využiť. Jednou z prvých opravených budov bol malý kaštieľ. Nebol síce evidovaný medzi kultúrnymi pamiatkami, aj tak však jeho oprava prebehla veľmi citlivo. V súčasnosti nie je naplno využitý, je však súčasťou budúcich plánov venovať sa tzv. eventovej turistike.
Jediným novotvarom, ktorý si architekt na budove dovolil, je zlatistá strešná krytina. „Prepája nám starú pôvodnú architektúru s novovybudovanými objektmi,“ hovorí Zoltán Bartal. „Museli sme sa popasovať s akousi schizofréniou miesta a zámeru. Mali sme tu isté historické súvislosti, ale majitelia sú noví, bez väzieb na lokalitu.“
Pokračovať v starých šľapajach nemalo zmysel. Tradičné vidiecke prostredie tiež kontrastuje so snahou priviesť sem moderné vybavenie pre klientov, ktorí očakávajú maximálne pohodlie. K tomu ešte treba doplniť aj najmodernejšiu technológiu výroby vína. Čerešničkou na torte je grafický vizuál vinárstva, na ktorom pracovalo štúdio Pergamen z Trnavy.
Ich rukopis nesú etikety i logotyp na fľašiach a rovnaký motív je prenesený aj na okná v reštaurácii či na steny v penzióne. Grafici vychádzali opäť z miestnych súvislostí, ale spracovali ich do puristickej podoby. Ich dizajn získal v roku 2014 ocenenie Red Dot Award.
Namiesto mníšok hostia
Vráťme sa však k architektúre. Najnovším prírastkom je práve penzión. Jeho fasáda víta prichádzajúcich návštevníkov ako originálna pozvánka. Na realizáciu bol použitý hliníkový stĺpovo-priečnikový systém so štrukturálnym zasklením.
Vytvára jednoliatu hladkú stenu, sklo má čierny reflexný efekt. Do systému sú zabudované von výklopné okná tiež so štrukturálnym zasklením. Jednotlivé škáry medzi zasklením boli vyplnené systémovým tesnením.
Interiér izieb v penzióne je namiešaný z industriálnych, moderných aj rustikálnych prvkov.
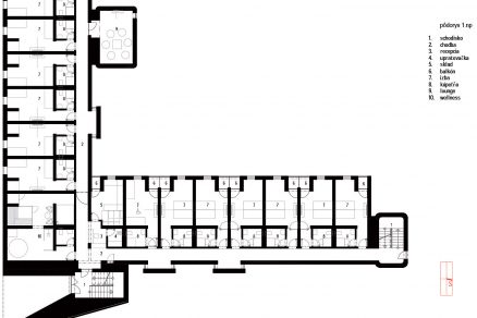
Objekt je pôvodný, kedysi v ňom boli ubytované mníšky. Na dispozícii aj členení fasád je poznať niekdajšiu priestorovú skromnosť. Architekta toto obmedzenie neodradilo, interiér neveľkých izieb je skutočne originálny. Nájdeme tu veľa prírodného dreva, rustikálne, ale aj industriálne doplnky. Všetko je namiešané citlivo s cieľom dosiahnuť útulnosť a pohodlie. Penzión ukrýva aj malé wellness aj relaxačnú miestnosť.
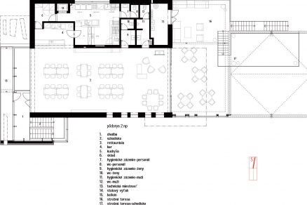
Druhou budovou, ktorá tiež premosťuje čas, je reštaurácia s modernou sofistikovanou vinárskou výrobou v čistučkej a dobre osvetlenej prevádzke. V podzemí tejto stavby sa nachádza sto rokov stará vínna pivnica, kde sa tradičným spôsobom v dubových sudoch dorába časť vínnej produkcie. Pre hostí je na poschodí k dispozícii reštaurácia s výhľadom do okolitej krajiny.
Jedáleň je vybavená nábytkom z masívneho dreva. Kombinácia vzdušného svetlo zaliateho interiéru s výhľadmi do okolia je ideálnym základom pre príjemnú degustáciu.
Interiér a vonkajšie terasy sú prepojené veľkoplošným zasklením. Priestor reštaurácie je možné usporiadať do rôzne veľkých celkov, k dispozícii je sedenie pri stoloch aj ležérnejší kút pri kozube. Zariadenie sa nesie v kombinácii prírodného dreva, skla a moderných svietidiel či umeleckých artefaktov.
Výstavba v areáli sa ešte nekončí. Čoskoro pribudnú drevené stavby na relax na vzduchu aj malá ukážková vinica, na ktorú už je pripravená pôda. Smelé plány vinárstva sú sympatické. Je chvályhodné, že idú ruka v ruke s kvalitným architektonickým stvárnením.
Jedáleň je vybavená nábytkom z masívneho dreva. Kombinácia vzdušného svetlo zaliateho interiéru s výhľadmi do okolia je ideálnym základom pre príjemnú degustáciu.
Areál vinárstva Chateau Rúbaň
Miesto: Rúbaň, okres Nové Zámky
Investor: Vienna DC
Architekt: Zoltán Bartal, Graphite
Otvorenie penziónu: 2015
Fasáda penziónu: Hliníkový stĺpovo-priečnikový systém Ponzio PF152 ESG
Situácia
Rúbaň
Text: Mária Nováková
Foto: Miro Pochyba
Dokumentácia: Ing. arch. Zoltán Bartal
Článok bol uverejnený v časopise ASB 1-2/2017.

















