Späť na článok Penzión Chateau Rúbaň
7 / 11
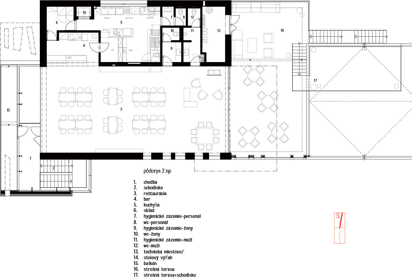
podorys 2np