image 70066 25 v1
Galéria(13)

Samostatná kuchyňa – retro či avantgarda?

Vytvoriť byt v štýle retro nie je len o vzore na podlahe. Termín retro vystihuje v interiérovom dizajne niekoľko dekád rôznych štýlov, najčastejšie sa však spája so 60. a 70. rokmi minulého storočia. V tomto duchu ľudia z ateliéru KIVVI architects navrhli dvojizbový byt vo Viedni. V projekte jedného bytu nájdete retro na všetkých úrovniach: v dispozícii, materiáloch a farbách. Usporiadanie miestností zdôrazňuje dôležitú odlišnosť oproti súčasným trendom. Stala sa uzavretá koncepcia bytu už len spomienkou na minulosť alebo čoskoro opäť nahradí trend spájania obývacej miestnosti s kuchyňou?

chodba 01
kupelna 02
kupelna 01
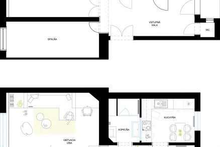
povodny   navrhovany stav
spalna 02
spalna 01
obyvacka 02
obyvacka 01

Posledné desaťročie sa stalo svedkom búrania nespočítateľného množstva priečok medzi obývacou miestnosťou a kuchyňou. Otvorený priestor dnes spája izolovaného užívateľa kuchyne so spoločenskou miestnosťou, čím sa pracovný priestor prelína s oddychovým. Mnoho storočí to však bolo inak. Kuchyňa vtedy mala čisto utilitárnu náplň a nachádzala sa v zadnej časti.

Dnes je prístup odlišný a denná zóna s otvoreným konceptom našla miesto v srdci domácnosti. Preto je čoraz vzácnejšie nájsť kuchyňu ako táto vo Viedni. Takú, ktorá má všetky steny a dvere. Výber konceptu je, samozrejme, individuálny, no toto rozhodnutie je nutné poriadne zvážiť. Kuchyňa býva zvyčajne najdrahšia položka prestavby a netreba sa riadiť len trendmi, ale aj potrebami. Zaujímavé je aj porovnanie riešenia vchodu do bytu. V retro úprave formuje čelo oproti vstupu skriňa s lesklými bielymi dverami. Priehľad od vstupných dverí nesmeruje priamo do dennej miestnosti.
Vlastník bytu sa s takýmto štýlom interiéru od začiatku stotožnil. Nová podoba bytu je vzdušná, svetlá, doplnená výraznými prvkami, ktoré primerane oživujú priestor. Práve pri retro návrhu býva potrebné zbaviť sa zábran a kombinovať tvary a materiály. Neutrálne povrchy stien umožňujú vyniknúť nábytku, ktorého každý kúsok sa svojsky snaží byť stredobodom záujmu. Najväčšie kusy pútajú svojou dominanciou, čo demonštruje posteľ v striedmo vybavenej spálni a obývacia stena v susednej miestnosti. Tie najmenšie dekorácie priťahujú pozornosť výstredným zjavom, pričom niekedy sa mix mnohých farieb nájde aj na jednom úplne malom objekte.
Oblasť, kde tento štýl maximálne prekračuje hranice, sú kombinácie materiálov. Dlažbu vo vstupnej hale dopĺňa charakteristický koberec s dlhším vlasom, kuchynská linka pozostáva z jednotných veľkých lesklých plôch a v obývačke pôsobia vedľa seba naraz rôzne štruktúry materiálu – drevo, tapeta a opäť lesklý povrch na dverách veľkej skrine.
Všetko neviazané kombinovanie je po bližšom skúmaní plne funkčné, použiteľné a nezanedbáva ani detaily. Vďaka zasklenej zástene sprchového kúta sa opticky zväčšuje menšia plocha kúpeľne a jednoduchý ornament na dlaždiciach a tapetách oživuje podlahy a steny tam, kde môže nerušene naplno vyniknúť výtvarný účinok opakujúceho sa vzoru.
Porovnávanie minulých a súčasných trendov nemôže mať jasného favorita. Ideálne je poučiť sa či ďalej rozvinúť koncepty predchádzajúcich obydlí a hlavne brať do úvahy, čo sa od prestavby očakáva. Dispozičným kompromisom medzi otvoreným a uzatvoreným konceptom je pracovný priestor, ktorý je síce prepojený s priestorom spoločenským, ale rovnako je možné jeho bezprostredné uzatvorenie. Tento dvojizbový retro byt názorne predvádza pozitíva uzatvoreného konceptu.

Autor: KIVVI architects
Lokalita: Viedeň, Rakúsko
Projekt: apríl – jún 2014
Realizácia: naplánovaná na marec 2015

TEXT: Katarína Vankušová  
VIZUALIZÁCIE: KIVVI architects
PÔDORYS: KIVVI architects

Viac o projekte retro bytu