Späť na článok
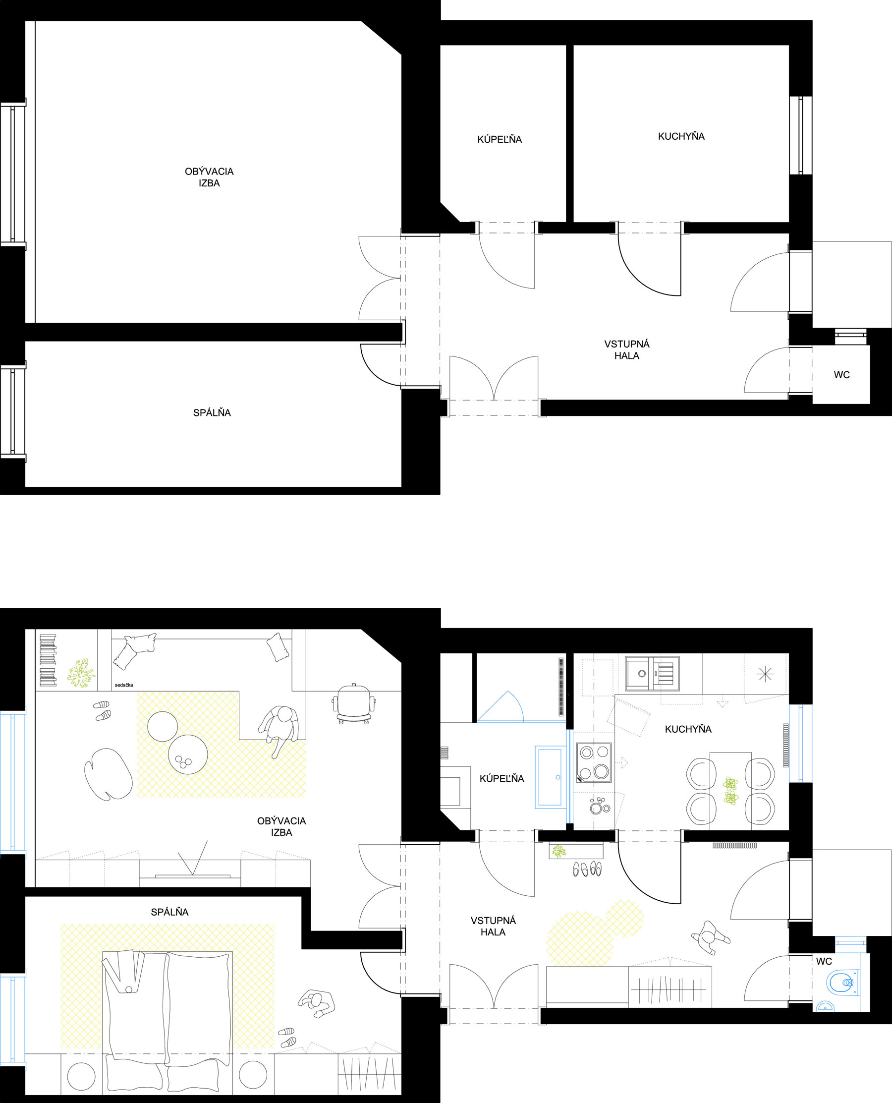
Samostatná kuchyňa – retro či avantgarda?
4 / 13
povodny navrhovany stav