Moderná a čo najviac sebestačná rekonštrukcia historickej stavby
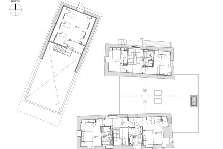
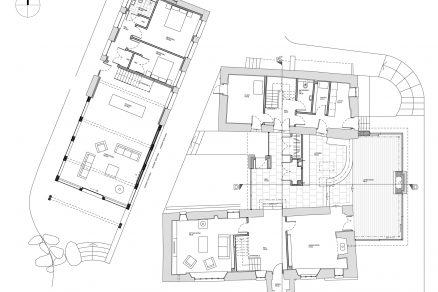
Rekonštrukcia Západnej farmy (West Yard Farm) na prvý pohľad upúta veľkými zasklenými plochami, ktoré vnášajú svetlo a prírodu priamo do interiéru. Celá usadlosť je zložená z troch celkov. Dve zrekonštruované pôvodné stavby sú spojené veľkým novým zaskleným priestorom a tretia stavba je taktiež takmer celá nová – pripomína stodolu so sklenenými stenami.
Čo najsebestačnejší a ohľaduplný k prírode
Želaním klienta, a teda aj zadaním pre architektov zo štúdia van Ellen + Sheryn, ktorí projekt realizovali, bolo zrekonštruovať a rozšíriť farmu z 18. storočia, vytvoriť z nej veľký rodinný dom či skôr sídlo. Dôležitou podmienkou bolo vybudovať čo najviac sebestačné obydlie, ktoré nezabúda na životné prostredie.
Citlivý prístup s modernými prvkami
Napriek tomu, že budovy neboli uvedené v zozname chránených, hoci sa nachádzajú v chránenej krajinnej oblasti North Bovey a v národnom parku, architekti pristupovali k rekonštrukcii a rozšíreniu starej stavby veľmi citlivo.
Moderné prvky, ktorými osviežili a sfunkčnili historickú stavbu, boli miestnymi plánovacími orgánmi dobre prijaté. Prehľadne oddelili staré od nového už na prvý pohľad, ale tak, aby to nevytváralo neladiaci kontrast.
Sklenená spájacia miestnosť – srdce domu
Najskôr bolo potrebné odstrániť nesúvislé rozšírenia a rôzne architektonické pokusy, ktoré vznikli v 50. rokoch 20. storočia, medzi statkom a stodolou. Aby bola zabezpečená úroveň ubytovania, akú rodina požadovala, architekti vložili medzi farmu a stodolu jednopodlažnú sklenenú stavbu z ocele. Vzniklo tak samotné srdce domu, v ktorom sa nachádza moderná kuchyňa s obývacou izbou. Z tohto vzdušného priestoru je priamy prístup do vonkajších záhrad. Sklenená prístavba zároveň slúži ako centrálne stretávacie miesto medzi statkom, stodolou a záhradou. V pôvodných budovách sú umiestnené súkromné obytné priestory a spálne.
Bývala „dojáreň“ je tiež zasklená
Z niekdajšej „dojárne“ architekti vytvorili ďalšie obytné kapacity pre hostí a návštevníkov statku. Polovica tehlovej a kamennej budovy však bola zničená, nahradilo ju rozsiahle zasklenie. Strop je otvorený až po strechu a opatrený drevenými trámami.
Nachádza sa tu tiež príjemná kuchyňa s obývacou miestnosťou a ďalšie súkromné priestory. Budova dostala aj novú zinkovú strechu odkazujúcu na poľnohospodárske dedičstvo pozemku.
Ako dosiahli čo najväčšiu sebestačnosť?
Teplo je v sídle zabezpečené štyrmi pecami na drevo, sekundárne vykurovanie je zabezpečené tepelným čerpadlom. Solárne panely, fotovoltický zosilňovač sú samozrejmosťou. V sídle sa nachádza aj systém na spracovanie odpadových vôd. Rekonštrukcia objektu vrátila stavbe život, preniesla ju storočiami až do toho súčasného. Charakter obydlia sa pritom dokáže meniť a prispôsobovať životnému štýlu rodiny.
West Yard Farm v kocke
Architektonické štúdio: van Ellen + Sheryn
Architekti: Eilir Sheryn, Ian Phillips
Lokalita: Devon, Anglicko
rozloha: 400 m2
rok projektu: 2013
Sabína Zavarská
Foto: Richard Downer Photography



















