Späť na článok
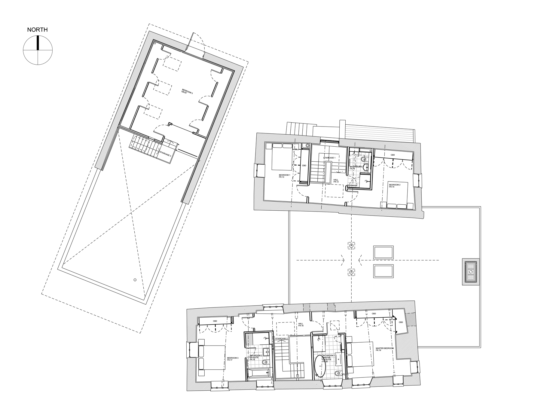
Moderná a čo najviac sebestačná rekonštrukcia historickej stavby
1 / 21
WestyardFirstFloorPlan With North Arrow