Kompaktný interiér s odkazom na minulosť
V tomto objekte zo začiatku uplynulého storočia sa kedysi nachádzalo Potravné a úverové družstvo, ale aj známy vajnorský hostinec, dnes je to reprezentatívne sídlo developerskej spoločnosti VI GROUP. Je sympatické, že si z interiérov nespravila výstredné miesto súčasných trendov, ale moderný interiér s kultivovaným odkazom na minulosť v jednom kompaktnom celku.
Investorský zámer vychádzal z reálnej situácie: staré priestory kapacitne nepostačovali, a tak sa začali hľadať nové. Cieľom bolo vytvoriť adekvátne reprezentatívne sídlo pre spoločnosť, ktoré by obsahovalo príjemné pracovné prostredie, ale aj priestor na spoločenské alebo rodinné stretnutia. Vyhliadnutým objektom sa stala chátrajúca historická budova na Roľníckej ulici vo Vajnoroch. Staré objekty však dokážu prekvapiť.
„V našom prípade sme museli napríklad kompletne zaizolovať celý suterén vzhľadom na vysokú hladinu podzemnej vody vo Vajnoroch,“ hovorí Juraj Duška z vedenia developerskej spoločnosti VI Group. „Museli sme spevniť takmer všetky stropné konštrukcie a rovnako bolo nutné upraviť vertikálne nosné prvky vrátane krovu. Do procesu nevyhnutne vstúpila aj zásadná úprava dispozícií, ako aj doplnenie a zabezpečenie technologického vybavenia objektu podľa súčasných požiadaviek.“
Realizácia prvého návrhu
Spolupráca s architektmi vzišla z menšej internej súťaže, ktorou si chcel investor overiť prístup oslovených ateliérov k možnostiam úpravy a poňatia priestoru. Koncept úpravy vybraného priestoru zaslal aj autorský kolektív Hubinský Kuklica Smerek Architects a na základe tejto štúdie ich investor oslovil dotvoriť ostatné priestory v rovnakom duchu.
„K vypracovaniu štúdie interiéru sme sa dostali vo fáze búracích prác, keď už mal investor jasnú predstavu o prevádzke budovy pozostávajúcej z vínnej pivnice, lounge, spoločenských priestorov a TZB v podzemí,“ hovorí architekt Juraj Hubinský. „V podstate bol realizovaný prvý návrh, a to len s menšími obmenami. Aj preto môžem konštatovať, že spolupráca s investorom prebehla relatívne hladko.“
Celostný dizajn
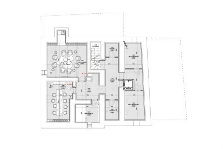
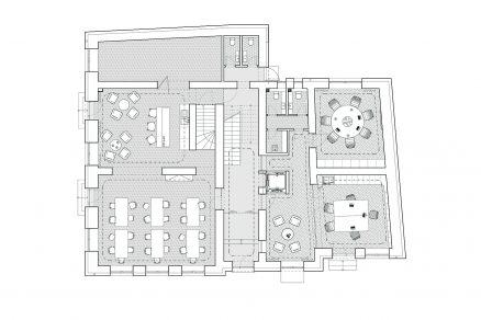
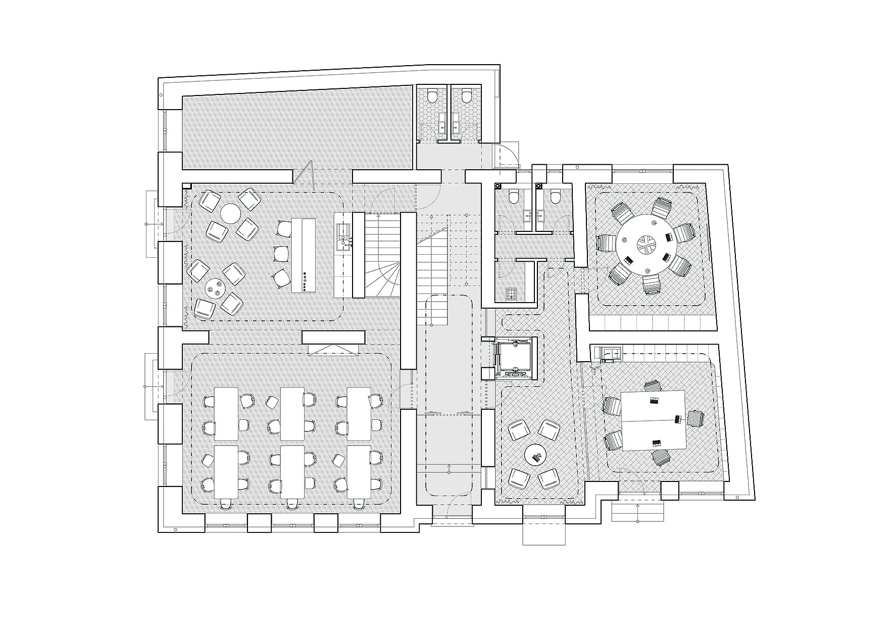
Základný dispozičný koncept hovorí, že na prízemí je jedáleň s kuchyňou pre zamestnancov a „salespoint“ s rokovacími priestormi pre klientov. Na druhom podlaží sa nachádzajú kancelárie vedenia, ekonomického oddelenia a právneho oddelenia, ako aj veľký priestor ateliéru so zasadacou miestnosťou.
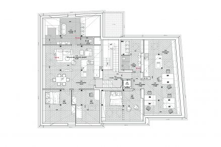
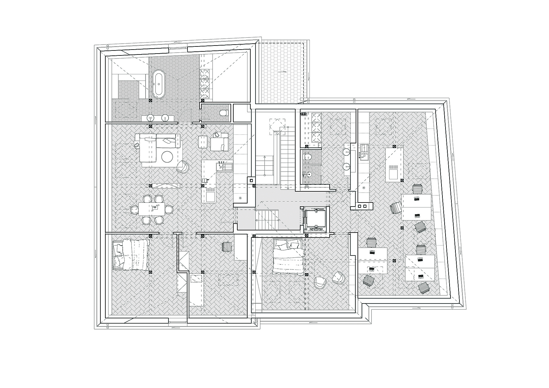
V najvrchnejšej časti sú umiestnené dva podkrovné byty. „Do prevádzky a návrhu dispozície sme teda v zásade nemuseli zasahovať, úlohou bolo doriešiť interiérový dizajn a zohľadniť kvalitu pôvodného domu,“ približuje Juraj Hubinský. „Väčšie úskalia sa na projekte nevyskytovali, ale zopárkrát sme prikročili k intenzívnejšiemu vysvetľovaniu zmyslu niektorých konštrukčných detailov, ktoré si od stavebníkov vyžadovali hodinársku prácu. Trvali sme na tom, aby bol interiér kvalitný od návrhu až po realizáciu, čo sa podarilo.“
Priestor ateliéru s koncovou zasadacou miestnosťou. Súčasťou vstavaného nábytku na mieru sú zabudované telefónne miestnosti. Pracovné stoly sú výsledkom dizajnu autorov.
Dôraz na vzhľad a povrch
Interiér chceli architekti zjednotiť použitými materiálmi, ktoré by boli úprimné svojím vzhľadom, textúrou či povrchom. Zároveň boli vyberané s ohľadom na historický charakter budovy. „Pivničné priestory nás nadchli svojím surovým výrazom,“ pokračuje architekt Hubinský. „V pôvodnom projekte sa uvažovalo o ,príbetonávkach‘ pôvodných stien budovy a následnej aplikácii maľovky. Využili sme tento stav a ,príbetonávky‘ sme nechali prebrúsiť a napenetrovať. Tak vyznel ich prirodzený betónový výraz a dopomohol k celkovému surovému charakteru pivničných priestorov. Surový dojem podporili aj navrhnuté hrubozrnné tmavé omietky na stropoch, liata podlaha a koncept nasvietenia priestorov.“
Hra s materiálom – drsné stropy v kontraste s nástennou maľbou s motívom vajnorskej čipky.
V atmosfére matného travertínu
Prvé a druhé poschodie spája subtílne oceľové schodisko v čiernej farbe s čiernymi žulovými stupňami. V chodbách vedúcich od schodiska k jednotlivým kanceláriám je na podlahe použitý matný travertín. Ten sa nachádza na všetkých podlažiach pri schodisku. V kanceláriách sú na podlahách položené vinylové spletané koberce v hnedej farbe. V priestoroch bytov v podkroví sú drevené parkety kladené do rybinového vzoru. V kúpeľniach a WC sú na všetkých podlažiach použité keramické obklady a dlažby s geometrickým tvarom vychádzajúcim z tvaru šesťuholníka.
Výrazný vstup s jasne vymedzenou materiálovou schémou: kameň, kov, drevo, sklo.
Akcenty na každom podlaží
Steny a stropy majú jednotný charakter, rovnako aj odtieň a typ dubovej dyhy použitej na stolárskych výrobkoch. Sklené priečky v čiernych matných kovových rámoch sú použité na stenách výťahovej šachty, ale aj ako interiérové priečky medzi kanceláriami. Na každom podlaží je umiestnený charakteristický výrazový akcent. Vo vínnej pivnici je ním decentne pôsobiaca linková grafika vychádzajúca z vajnorskej čipky, namaľovaná na surovej „príbetonávke“. V jedálni je to zase medený bar so zabudovanou kuchynkou či stena s obložkami a „skrytými“ dverami vedúcimi do kuchyne.
Drevený obklad na stene ukrýva dvere, za ktorými je schovaná kuchyňa.
Na druhom podlaží je to potom vstavaná knižnica s telefónnymi miestnosťami či tehličkový reliéf prímurovky v zasadačke. Od priestoru sa odvíja aj koncept osvetlenia stropov a zábradlí, líniové podsvietenie svetelných podhľadových rámp pod stropmi, ale aj výber svietidiel a ich dizajn… Výsledok? Tento interiér vo Vajnoroch je ďalší príklad harmonizácie investorových ambícií, architektových predstáv a realizačných výsledkov pri vydarenej záchrane historického objektu.
Pravidelný raster svietidiel dáva jedálni možnosť využiť ju aj ako multifunkčný priestor.
INTERIÉR KANCELÁRIÍ PRE SPOLOČNOSŤ VI GROUP
Miesto: Roľnícka ulica, Bratislava-Vajnory
Investor: VI GROUP
Architekti: Ing. arch. Mgr. art. Juraj Hubinský, Ing. arch. Peter Kuklica, Ing. arch. Martin Smerek
Začiatok a ukončenie rekonštrukcie: 07/2015 – 03/2017
Úžitková plocha: 898,26 m2
![]() |
![]() |
| Pôdorys 1. NP | Pôdorys 3. NP |
TEXT: ĽUDOVÍT PETRÁNSKY
FOTO: TOMÁŠ MANINA
DOKUMENTÁCIA: HUBINSKÝ KUKLICA SMEREK ARCHITECTS
Článok bol uverejnený v časopise ASB 1-2/2018.



















